Rzut parteru
| Pomieszczenie | Powierzchnia m2 |
| GARDEROBA | 5.63 |
| WIATROŁAP | 9.66 |
| KOMUNIKACJA | 8.12 |
| GARAŻ | 41.54 |
| GABINET | 13.53 |
| TARAS ZADASZONY | 30.22 |
| JADALNIA | 8.6 |
| PRYSZNIC | 1.8 |
| KUCHNIA | 9.14 |
| POKÓJ SPA | 26.87 |
| SYPIALNIA | 12.98 |
| TOALETA | 2.57 |
| SPIŻARNIA | 1.74 |
| ŁAZIENKA | 4.9 |
| GARDEROBA | 7.78 |
| – | |
| SALON | 27.04 |
| – | |
| SAUNA | 5.0 |
| ŁAZIENKA | 3.77 |
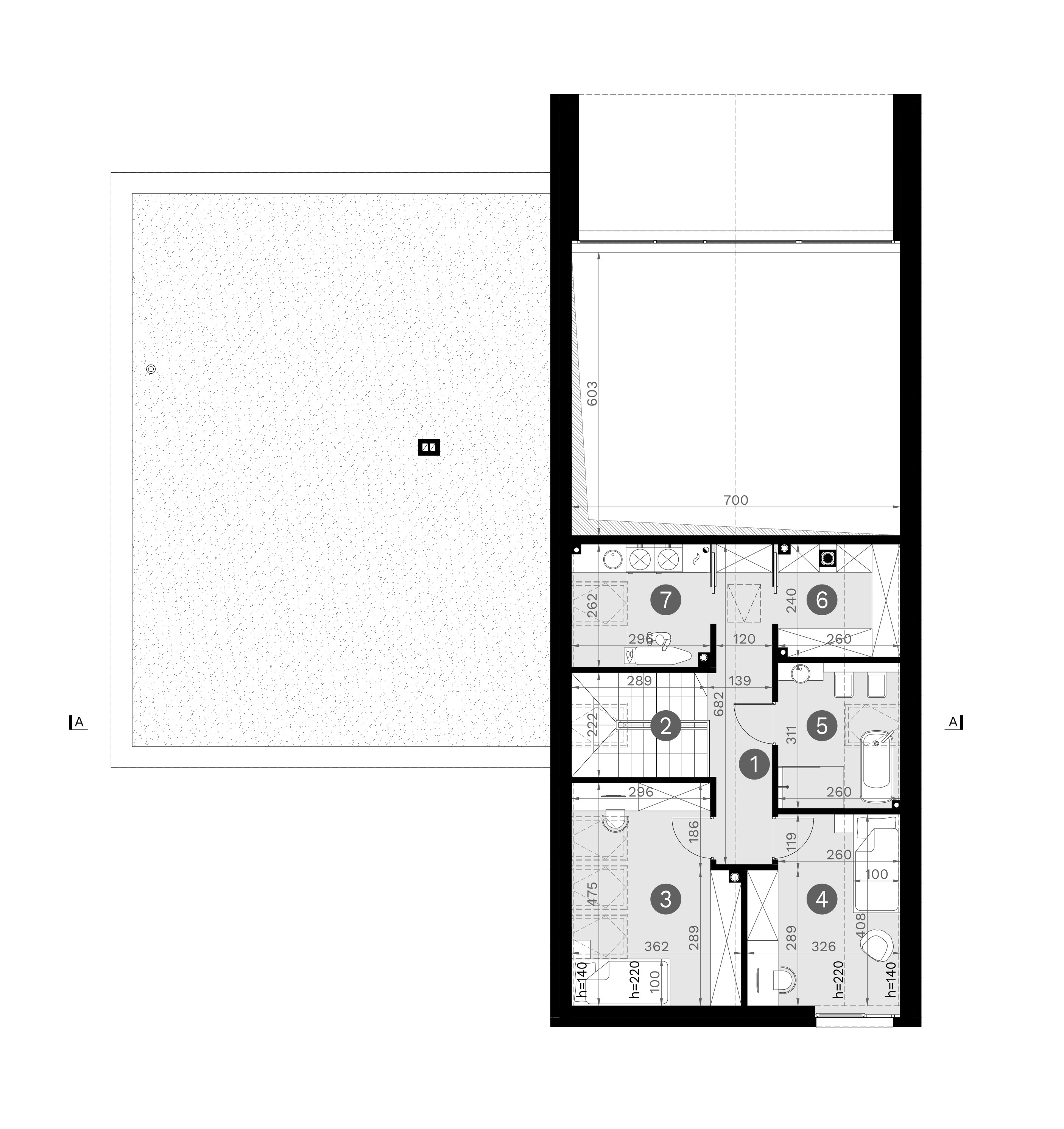
Rzut poddasza
| Pomieszczenie | Powierzchnia m2 |
| KOMUNIKACJA | 8.61 |
| ŁAZIENKA | 6.17 |
| PRALNIA / KOTŁOWNIA | 6.06 |
| POKÓJ | 13.0 |
| SCHODY | 6.42 |
| POKÓJ | 10.03 |
| GARDEROBA | 4.51 |
Zużycie energii
Projekt domu zgodny z przepisami WT 2017
Wskaźnik EP dla domu bez względu na rozwiązanie grzewcze: (szczegółowe dane w charakterystyce energetycznej)
EP < 65.9 kWh/m2*rok
Wskaźnik EP określa roczne zapotrzebowanie domu na nieodnawialną energię pierwotną do ogrzewania, wentylacji oraz przygotowania ciepłej wody użytkowej.
Koszt budowy
| KOSZTY MINIMALNE | KOSZTY ŚREDNIE | |
| STAN SUROWY ZAMKNIĘTY (SSZ) | 546593.0 | 628268.0 |
| STAN SUROWY ZAMKNIĘTY METODĄ GOSPODARCZĄ | 459138.0 | 540311.0 |
| PRACE WYKOŃCZENIOWE | 306994.0 | 352866.0 |
| INSTALACJE (W TYM WENTYLACJA MECHANICZNA) | 146111.0 | 164170.0 |
Pliki za darmo!
Więcej informacji na temat projektu
| Technologia | Opis |
|---|---|
| Fundamenty | tradycyjne – na ławach fundamentowych |
| Ściany | dwuwarstwowe pustak ceramiczny 25 cm + styropian Termo Organika 20 cm/wełna mineralna 18 cm |
| Stropy | żelbetowy wylewany |
| Dach | tradycyjna więźba dachowa pokryta blachą na rąbek, okna dachowe FAKRO, stropodach pełny kryty membraną EPDM |
| Elewacja | tynk silikonowy w kolorze białym i grafitowym połączony z drewnem elewacyjnym |
| Ogrzewanie | gazowe – piec kondensacyjny oraz ogrzewanie podłogowe w całym domu, dodatkowo w łazienkach tradycyjne grzejniki typu ręcznikowiec |
| Wentylacja | mechaniczna z rekuperacją |























