Rzut parteru
| Pomieszczenie | Powierzchnia m2 |
| KOMUNIKACJA | 3.77 |
| GARAŻ | 21.6 |
| – | |
| – | |
| WIATROŁAP | 4.95 |
| TOALETA | 3.7 |
| KOTŁOWNIA/PRALNIA | 4.1 |
| GABINET | 11.04 |
| SPIŻARNIA | 1.73 |
| SALON/JADALNIA | 33.37 |
| POM. GOSPODARCZE | 6.46 |
| TARAS | 64.15 |
| KUCHNIA | 10.12 |
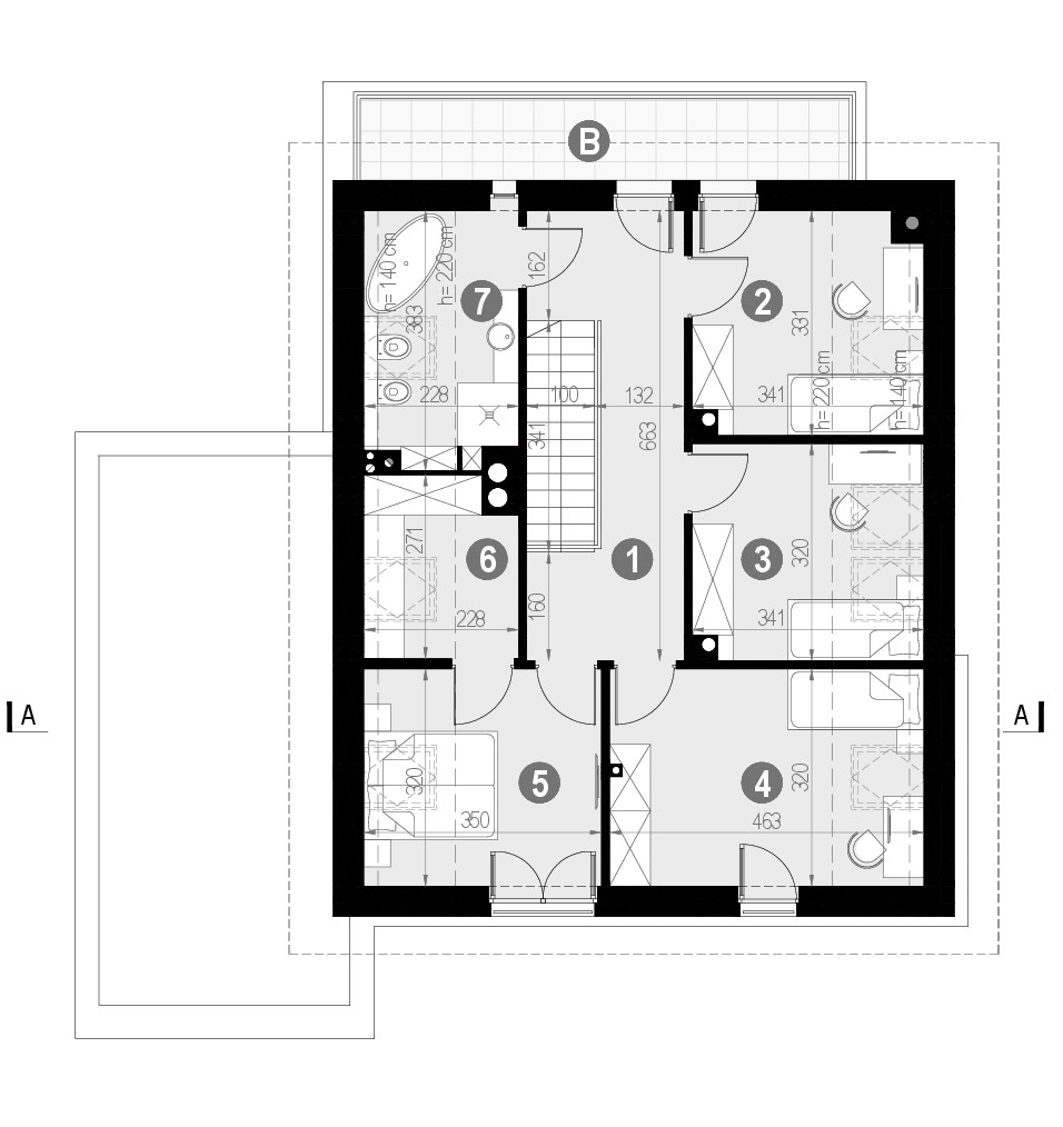
Rzut poddasza
| Pomieszczenie | Powierzchnia m2 |
| ŁAZIENKA | 5.48 |
| SYPIALNIA | 12.28 |
| GARDEROBA | 3.74 |
| SYPIALNIA | 8.5 |
| SYPIALNIA | 8.71 |
| – | |
| BALKON | 8.64 |
| SYPIALNIA | 8.27 |
| KOMUNIKACJA | 13.68 |
Zużycie energii
Projekt domu zgodny z przepisami WT 2017
Wskaźnik EP dla domu bez względu na rozwiązanie grzewcze: (szczegółowe dane w charakterystyce energetycznej)
EP < 69.69 kWh/m2*rok
Wskaźnik EP określa roczne zapotrzebowanie domu na nieodnawialną energię pierwotną do ogrzewania, wentylacji oraz przygotowania ciepłej wody użytkowej.
Koszt budowy
| KOSZTY MINIMALNE | KOSZTY ŚREDNIE | |
| STAN SUROWY ZAMKNIĘTY (SSZ) | 332353.0 | 382015.0 |
| STAN SUROWY ZAMKNIĘTY METODĄ GOSPODARCZĄ | 279177.0 | 328533.0 |
| PRACE WYKOŃCZENIOWE | 193756.0 | 222708.0 |
| INSTALACJE (W TYM WENTYLACJA MECHANICZNA) | 95861.0 | 107708.0 |
Pliki za darmo!
Więcej informacji na temat projektu
| Technologia | Opis |
|---|---|
| Fundamenty | tradycyjne – na ławach fundamentowych |
| Ściany | dwuwarstwowe – pustak ceramiczny 25 cm + styropian Termo Organika 20 cm/wełna mineralna 18 cm |
| Stropy | żelbetowy wylewany |
| Dach | tradycyjna więźba dachowa pokryta dachówką ceramiczną lub cementową swissporTON, okna dachowe FAKRO, stropodach kryty membraną EPDM |
| Elewacja | tynk silikonowy połączony z drewnem elewacyjnym |
| Ogrzewanie | gazowe – piec kondensacyjny oraz ogrzewanie podłogowe w salonie, jadalni, kuchni, łazienkach, wiatrołapie i części komunikacyjnej, tradycyjne grzejniki w pozostałych pomieszczeniach |
| Wentylacja | mechaniczna z rekuperacją |

















