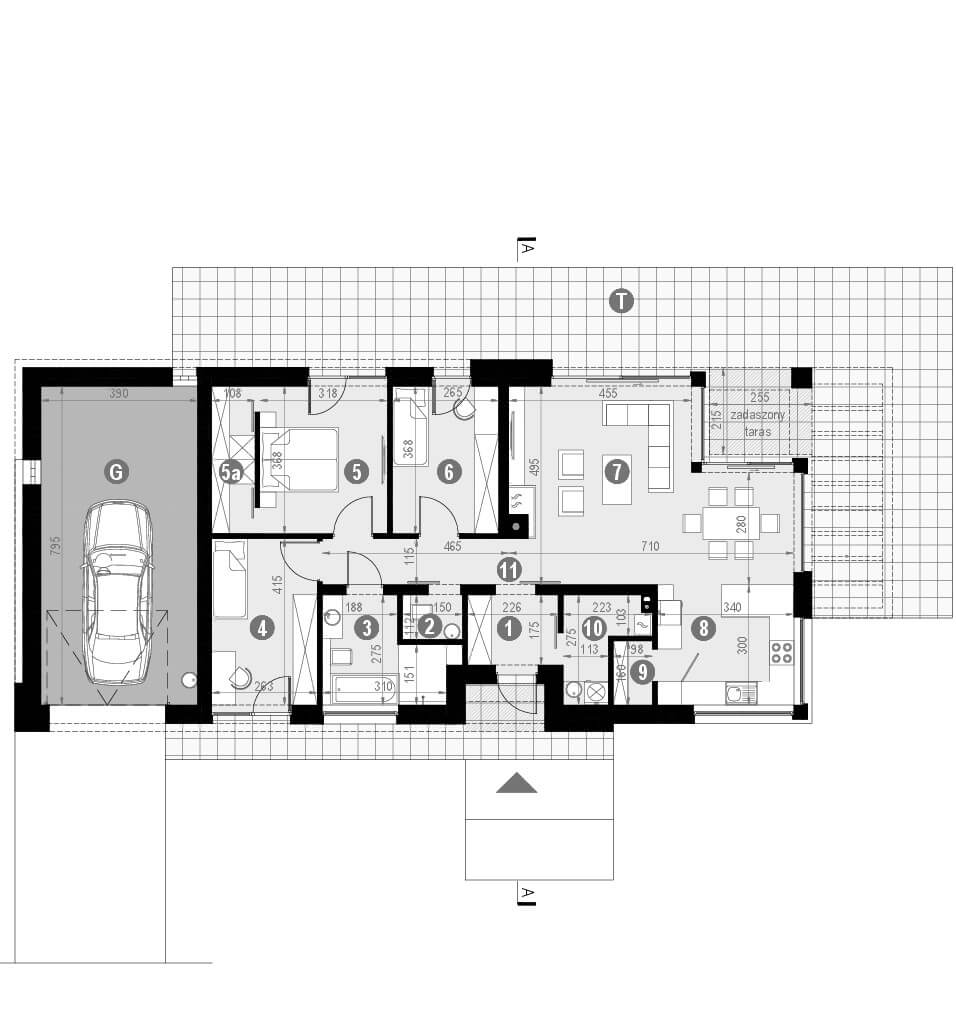
Rzut parteru
| Pomieszczenie | Powierzchnia m2 |
| GARAŻ | 31.01 |
| KOTŁOWNIA / PRALNIA | 4.12 |
| – | |
| SYPIALNIA | 11.7 |
| SYPIALNIA | 9.75 |
| Garderoba | 3.97 |
| Kuchnia | 10.2 |
| Łazienka | 7.22 |
| Wiatrołap | 3.96 |
| Spiżarnia | 1.57 |
| Komunikacja | 5.35 |
| SYPIALNIA | 10.91 |
| TOALETA | 1.68 |
| SALON / JADALNIA | 29.37 |
| – | |
| TARAS | 75.28 |
Zużycie energii
Projekt domu zgodny z przepisami WT 2017
Wskaźnik EP dla domu bez względu na rozwiązanie grzewcze: (szczegółowe dane w charakterystyce energetycznej)
EP < 65.46 kWh/m2*rok
Wskaźnik EP określa roczne zapotrzebowanie domu na nieodnawialną energię pierwotną do ogrzewania, wentylacji oraz przygotowania ciepłej wody użytkowej.
Koszt budowy
| KOSZTY MINIMALNE | KOSZTY ŚREDNIE | |
| STAN SUROWY ZAMKNIĘTY (SSZ) | 356859.0 | 410183.0 |
| STAN SUROWY ZAMKNIĘTY METODĄ GOSPODARCZĄ | 299762.0 | 352758.0 |
| PRACE WYKOŃCZENIOWE | 190639.0 | 219126.0 |
| INSTALACJE (W TYM WENTYLACJA MECHANICZNA) | 97794.0 | 109881.0 |
Pliki za darmo!
Więcej informacji na temat projektu
| Technologia | Opis |
|---|---|
| Fundamenty | tradycyjne – na ławach fundamentowych |
| Ściany | dwuwarstwowe – pustak ceramiczny 25 cm + styropian Termo Organika 20 cm/wełna mineralna 18 cm |
| Stropy | żelbetowy wylewany |
| Dach | tradycyjna więźba dachowa pokryta dachówką ceramiczną lub cementową CREATON, stropodach pełny kryty membraną EPDM |
| Elewacja | tynk silikonowy połączony z deskami elewacyjnymi modrzew syberyjski |
| Ogrzewanie | gazowe – piec kondensacyjny, panele solarne na dachu domu do podgrzewania wody użytkowej oraz ogrzewanie podłogowe w salonie z jadalnią, kuchni, łazienkach, wiatrołapie i części komunikacyjnej, tradycyjne grzejniki w pozostałych pomieszczeniach |
| Wentylacja | mechaniczna z rekuperacją |














