Rzut parteru
| Pomieszczenie | Powierzchnia m2 |
| KOMUNIKACJA | 11.32 |
| SYPIALNIA | 13.33 |
| TOALETA | 1.55 |
| TARAS | 127.05 |
| ŁAZIENKA/SAUNA | 14.35 |
| – | |
| SALON/JADALNIA/ KUCHNIA | 43.12 |
| SYPIALNIA | 12.97 |
| WIATROŁAP | 5.42 |
| KOTŁOWNIA/POM.GOSP. | 3.98 |
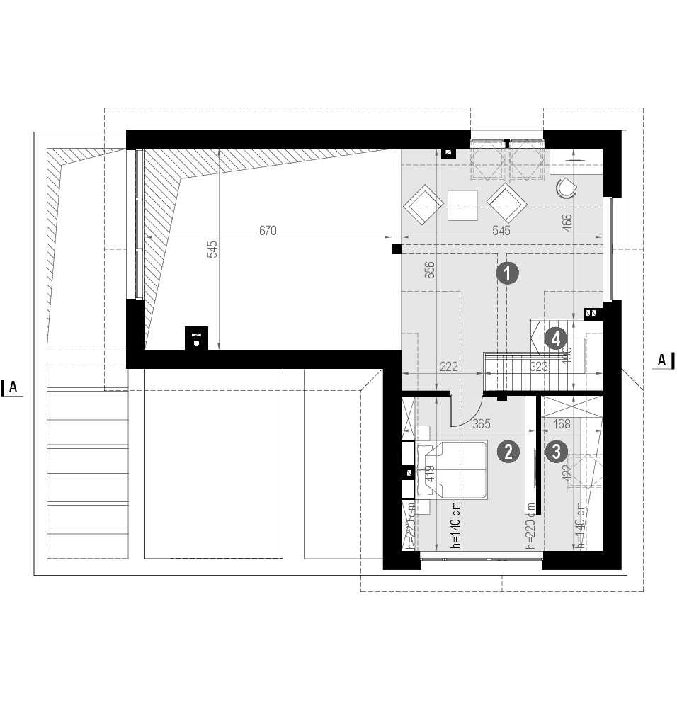
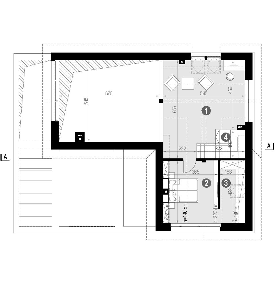
Rzut poddasza
Zużycie energii
Projekt domu zgodny z przepisami WT 2017
Wskaźnik EP dla domu bez względu na rozwiązanie grzewcze: (szczegółowe dane w charakterystyce energetycznej)
EP < 66.46 kWh/m2*rok
Wskaźnik EP określa roczne zapotrzebowanie domu na nieodnawialną energię pierwotną do ogrzewania, wentylacji oraz przygotowania ciepłej wody użytkowej.
Koszt budowy
| KOSZTY MINIMALNE | KOSZTY ŚREDNIE | |
| STAN SUROWY ZAMKNIĘTY (SSZ) | 260458.0 | 299377.0 |
| STAN SUROWY ZAMKNIĘTY METODĄ GOSPODARCZĄ | 218784.0 | 257464.0 |
| PRACE WYKOŃCZENIOWE | 132926.0 | 152789.0 |
| INSTALACJE (W TYM WENTYLACJA MECHANICZNA) | 60364.0 | 67825.0 |
Pliki za darmo!
Więcej informacji na temat projektu
| Technologia | Opis |
|---|---|
| Fundamenty | tradycyjne – na ławach fundamentowych |
| Ściany | dwuwarstwowe – pustak ceramiczny 25 cm + wełna mineralna 20 cm |
| Stropy | żelbetowy wylewany |
| Dach | tradycyjna więźba dachowa pokryta dachówką ceramiczną lub cementową CREATON, okna dachowe FAKRO |
| Elewacja | okładziny drewniane (sosna skandynawska) malowane na kolor heban połączone z tynkiem silikonowym |
| Ogrzewanie | gazowe – wspomagane przez kominek, ogrzewanie podłogowe w salonie, kuchni, jadalni, komunikacji, łazienkach oraz tradycyjne grzejniki w pozostałych pomieszczeniach |
| Wentylacja | grawitacyjna |


















