Projekt dostępny również w odbiciu lustrzanym
Projekt domu Anatol to wygodny, parterowy dom dla rodziny 4- 6-osobowej, o bardzo stonowanej architekturze. Projekt Anatol łączy w sobie prostotę, nowoczesną racjonalność i tradycyjny detal architektoniczny. Parterowa bryła budynku przekryta dwuspadowymi dachami, kryje w sobie dodatkową przestrzeń strychu, który po zaadaptowaniu, może służyć jako poddasze użytkowe. Dzięki przemyślanym proporcjom, oraz dodatkom, takim jak ganek frontowy na kolumienkach, czy duża ogrodowa weranda, przekryta dwuspadowym dachem – dom Anatol jest jednocześnie prosty, ciekawy i elegancki. We wnętrzu domku, prócz przestronnego salonu połączonego z holem i kuchnią, zaprojektowano dodatkowo cztery pokoje, duże pomieszczenie gospodarcze, dwie łazienki i wc. To wystarczająca ilość pomieszczeń nawet dla dość licznej rodziny. Dobudowany do głównej bryły garaż jest powiększony o dodatkowe pomieszczenie gospodarcze. Schody na strych prowadzą z pomieszczenia gospodarczego – kotłowni. W przypadku adaptacji strychu na poddasze użytkowe należy zmienić układ ścianek działowych kotłowni łazienki i włączyć schody do holu. Dostępna jest także wersja odbicia lustrzanego projektu Anatol. Zapraszamy do zapoznania się z pełną ofertą pracowni MG Projekt: projekt domu Anatol 2.
Elewacje
Zestawienie pomieszczeń
Parter
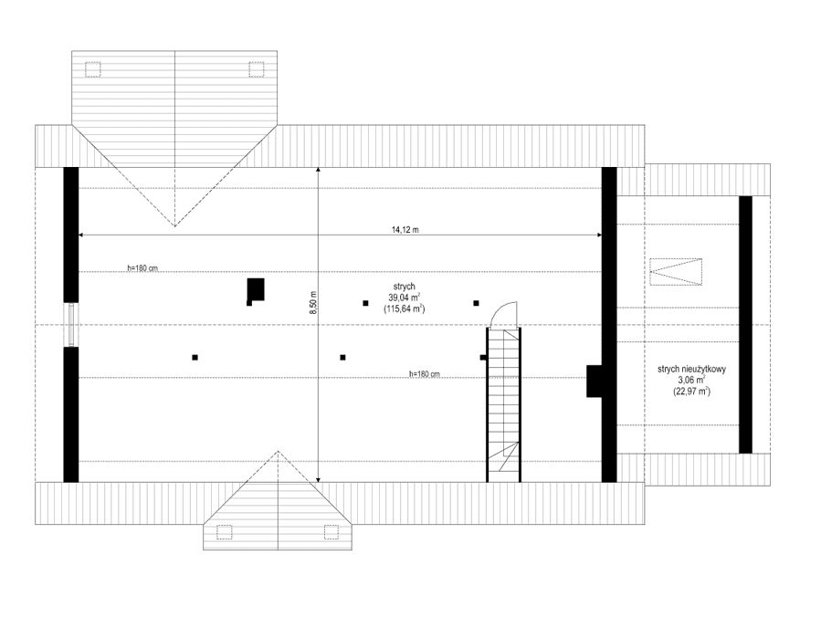
Piętro
Dodatkowe Informacje o Budynku
| Powierzchnia garażu: | 22,82 m2 |
| Powierzchnia strychu: | 0,00 m2 |
| Technologia wykonania: | |
| Typ budynku: | jednorodzinny |
| Styl: | tradycyjny |
| Ilość kondygnacji: | parterowy ze strychem |
| Poddasze: | strych |
| Podpiwniczenie: | brak |
| Dach: | dwuspadowy |
Przeciętne Koszty budowy
| Pozycja | Koszt realizacji |
|---|---|
| Stan surowy otwarty | 183 835,00 zł |
| Stan surowy zamknięty | 249 711,00 zł |
| Roboty wykończeniowe | 309 260,00 zł |
| Stan deweloperski | 558 971,00 zł |
| Instalacje | 79 759,00 zł |
| Pokrycie dachu | 67 893,00 zł |






