Rzut parteru
| Pomieszczenie | Powierzchnia m2 |
| GARAŻ | 35.4 |
| SALON/JADALNIA | 34.98 |
| GARDEROBA | 6.02 |
| SPIŻARNIA | 2.3 |
| ŁAZIENKA | 2.4 |
| WIATROŁAP | 4.52 |
| – | |
| KOTŁOWNIA/PRALNIA | 4.75 |
| TARAS | 97.21 |
| KOMUNIKACJA | 11.13 |
| – | |
| KUCHNIA | 8.37 |
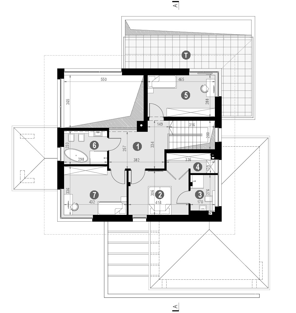
Rzut piętra
| Pomieszczenie | Powierzchnia m2 |
| SYPIALNIA | 13.39 |
| TARAS | 25.39 |
| SYPIALNIA | 12.64 |
| KOMUNIKACJA | 14.77 |
| ŁAZIENKA | 4.24 |
| – | |
| ŁAZIENKA | 6.94 |
| GARDEROBA | 4.05 |
| SYPIALNIA | 14.11 |
Zużycie energii
Projekt domu zgodny z przepisami WT 2017
Wskaźnik EP dla domu bez względu na rozwiązanie grzewcze: (szczegółowe dane w charakterystyce energetycznej)
EP < 69.76 kWh/m2*rok
Wskaźnik EP określa roczne zapotrzebowanie domu na nieodnawialną energię pierwotną do ogrzewania, wentylacji oraz przygotowania ciepłej wody użytkowej.
Koszt budowy
| KOSZTY MINIMALNE | KOSZTY ŚREDNIE | |
| STAN SUROWY ZAMKNIĘTY (SSZ) | 486220.0 | 558873.0 |
| STAN SUROWY ZAMKNIĘTY METODĄ GOSPODARCZĄ | 408425.0 | 480631.0 |
| PRACE WYKOŃCZENIOWE | 208704.0 | 239890.0 |
| INSTALACJE (W TYM WENTYLACJA MECHANICZNA) | 121765.0 | 136814.0 |
Pliki za darmo!
Więcej informacji na temat projektu
| Technologia | Opis |
|---|---|
| Fundamenty | tradycyjne – na ławach fundamentowych |
| Ściany | dwuwarstwowe – pustak ceramiczny 25 cm + styropian Termo Organika 20 cm/wełna mineralna 18 cm |
| Stropy | żelbetowy wylewany |
| Dach | tradycyjna więźba dachowa pokryta dachówką ceramiczną lub cementową CREATON |
| Elewacja | tynk silikonowy połączony z płytami elewacyjnymi |
| Ogrzewanie | gazowe – piec kondensacyjny oraz ogrzewanie podłogowe w wiatrołapie, kuchni, jadalni, salonie, łazienkach, komunikacji, garderobie, pralni, tradycyjne grzejniki w pozostałych pomieszczeniach |
| Wentylacja | mechaniczna z rekuperacją |
















