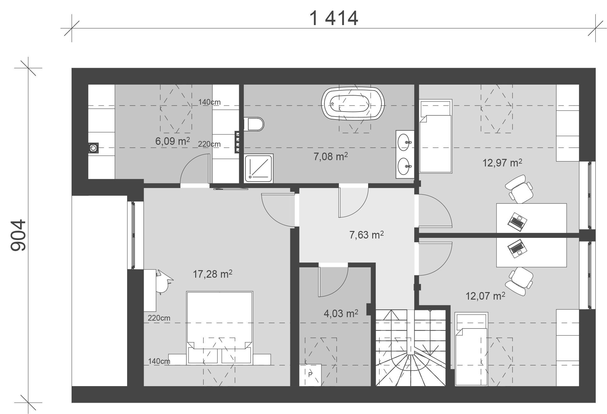
Projekt domu uA34 to klasyczny dom z dwuspadowym dachem z bardzo optymalnie zagospodarowaną przestrzenią wewnątrz. Posiada on dwustanowiskowy garaż z dostępem do dwóch pomieszczeń gospodarczych. Wchodzimy do domu przez niewielki wiatrołap, pełniący funkcję ogólnodostępnej garderoby i łącznika z garażem. Na początku korytarza znajduje się mała łazienka, natomiast na jego końcu zlokalizowano gabinet, którego ściana tworzy kącik wypoczynkowy w salonie z jadalnią i otwartą kuchnią. Obok kuchni znajduje się również niewielkie pomieszczenie spiżarni, przy której zlokalizowano schody na piętro. Kondygnacja nad parterem to klasyczna strefa nocna z niewielkim korytarzem łączącym wszystkie pomieszczenia na górze. Znajdują się tu: dwie sypialnie dla dzieci, pomieszczenie pralni, obszerna łazienka i sypialnia rodziców z balkonem i prywatną garderobą. Projekt uA34 to najlepsze rozwiązanie dla ludzi ceniących komfort i najbardziej optymalne wykorzystanie przestrzeni.
Projekt należy do grupy projektów uA34 i występuje w wielu wariantach : uA34v1 , uA34v2, uA34v3, uA34v4, uA34v5 oraz uA34v6.
Elewacje
Zestawienie pomieszczeń
Parter
Poddasze
Usytuowanie na działce
Dodatkowe Informacje o Budynku
| Garaż: | dwustanowiskowy |
| Dach: | dwuspadowy |
| Technologia wykonania: | Murowana |




