Charakterystyka: Dom parterowy z
poddaszem użytkowym, niepodpiwniczony, z garażem jednostanowiskowym
Przeznaczenie: Dom dla 3-5-osobowej
rodziny
Technologia i
konstrukcja:
Ściany zewnętrzne: murowane,
dwuwarstwowe, beton komórkowy 24 cm, ocieplenie wełna mineralna 12 cm
Strop: międzypiętrowy
gęstożebrowy Teriva
Dach: konstrukcja drewniana,
ocieplenie wełna mineralna Isover 28
cm, dachówka ceramiczna płaska Bergamo firmy Röben
Inne: schody wewnętrzne
drewniane
Rozwiązania
instalacyjne:
Ogrzewanie: kocioł gazowy
kondensacyjny firmy Viessmann, rozprowadzenie ciepła: grzejniki firmy Purmo
Wentylacja: grawitacyjna
OZE: kolektory słoneczne firmy Viessmann
Dodatkowo: stacja uzdatniania wody firmy Viessmann
Wykończenie:
Elewacje: tynk cienkowarstwowy
mineralny w kolorze TO-PA001 z palety firmy Termo Organika, okładzina drewniana
Stolarka: drewniana, PVC lub
aluminiowa, drzwi wejściowe i brama garażowa firmy Hörmann, rolety zewnętrzne w systemie CleverBox firmy BeClever
Okna połaciowe: rozwiązania
technologiczne i wyłaz dachowy firmy FAKRO
Otoczenie: system tarasowy ProDeck – deska kompozytowa Terra w kolorze orzech
Wersje – zapytaj o dostępność:
– Patryk – bez garażu i z garażem
dwustanowiskowym
– Patryk II – mniejsza powierzchnia użytkowa, różne wersje garaży
– Patryk III – zbliżona powierzchnia użytkowa, rozwiązania technologiczne firmy
Rigips, ocieplenia w standardzie energo, inne wykończenie elewacji, różne
wersje garaży
– Patryk IV – większa powierzchnia użytkowa, podobny układ funkcjonalny, dach
bez okapów, ocieplenia w standardzie energo, inne wykończenie elewacji, różne
wersje garaży
– Patryk Multi-Comfort – dom z rozwiązaniami materiałowo-technologicznymi Grupy
Saint-Gobain, powierzchnia użytkowa zbliżona do wersji I, różne wersje garaży
– Każdy budynek o innych wymiarach zewnętrznych
– Odbicie lustrzane dla wszystkich wersji
Istnieje
techniczna możliwość:
– podpiwniczenia budynku
– wykonania budynku w technologii szkieletowej
Elewacje




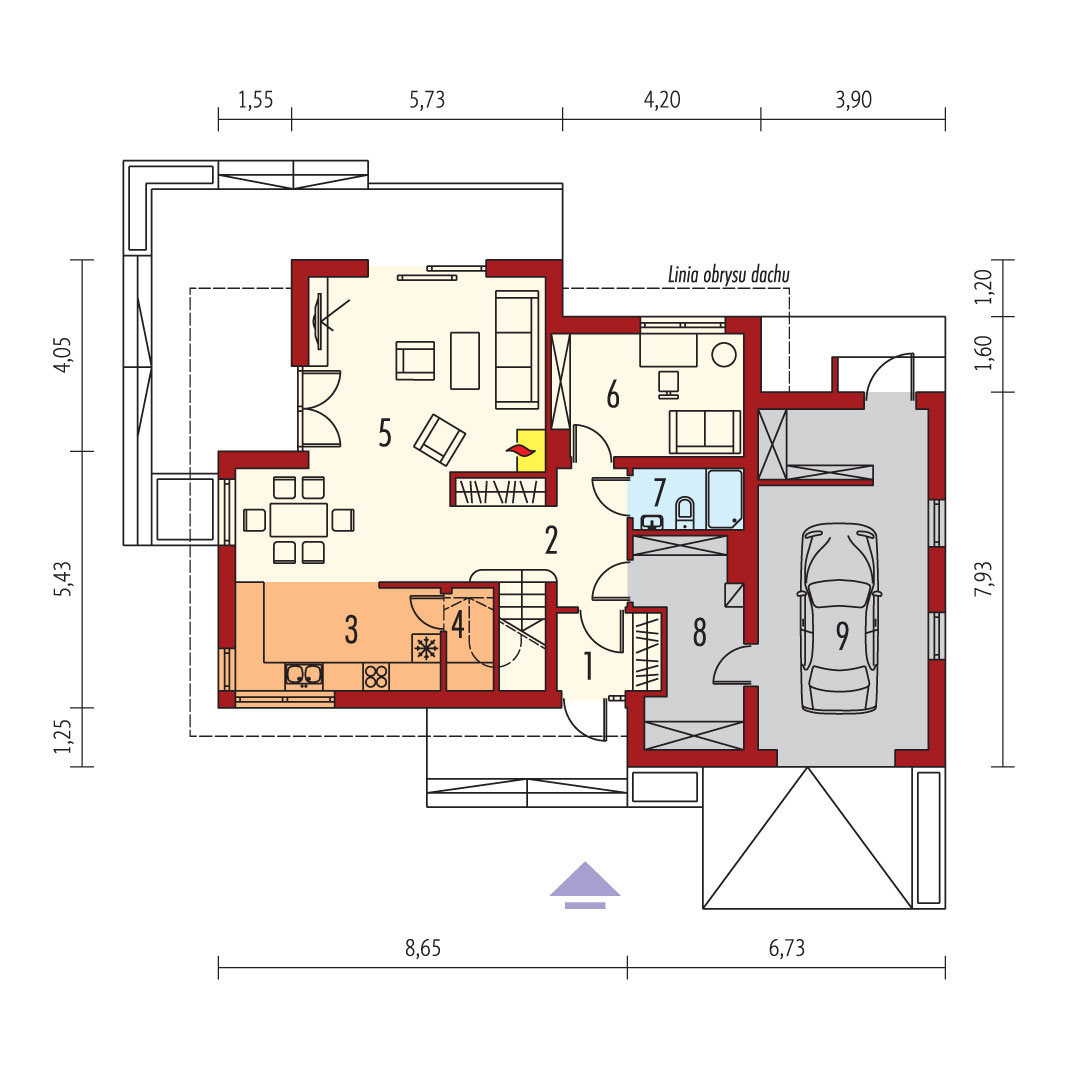
Zestawienie pomieszczeń

Parter
| Wiatrołap | 3.56 m2 |
| Hol + schody | 11.54 m2 |
| Kuchnia | 9.49 m2 |
| Spiżarnia | 2.34 m2 |
| Pokój dzienny + jadalnia | 31.08 m2 |
| Gabinet | 10.26 m2 |
| Łazienka | 2.98 m2 |
| Kotłownia | 8.50 m2 |
| Garaż | 25.35 m2 |

Poddasze
| Korytarz | 6.22 m2 |
| Sypialnia | 12.17 m2 |
| Garderoba | 5.41 m2 |
| Sypialnia | 14.11 m2 |
| Sypialnia | 11.33 m2 |
| Łazienka | 6.33 m2 |
| Pralnia | 3.98 m2 |
Przeciętne Koszty budowy
| Pozycja | Koszty uśrednione* |
|---|---|
| Stan surowy otwarty | 249158.00 zł |
| Stan surowy zamknięty | 306656.00 zł |
| Instalacje wewnętrzne | 50790.00 zł |
| Stan deweloperski | 507899.00 zł |
Dodatkowe Informacje o Budynku
| Rodzaj zabudowy: | wolnostojąca z możliwością zbliźniaczenia |
| Rodzaj projektu: | dom |
| Kominek: | możliwość podłączenia |
| Garaż: | |
| Powierzchnia strychu: | 0.00 m2 |
| Dach: | dwuspadowy |
| Liczba kondygnacji: | parterowy z poddaszem użytkowym |
| Liczba pokoi: | 4 |
| Liczba sypialni: | 1 |
| Liczba łazienek: | 2 |






















