Rzut parteru
| Pomieszczenie | Powierzchnia m2 |
| garaż | 41.17 |
| kotłownia | 3.64 |
| – | |
| taras | 29.32 |
| SPIŻARNIA | 3.14 |
| KUCHNIA | 11.79 |
| JADALNIA | 12.09 |
| ŁAZIENKA | 5.13 |
| komunikacja | 6.88 |
| SALON | 19.86 |
| – | |
| TARAS | 58.63 |
| wiatrołap | 6.42 |
| GABINET/POK. GOŚCINNY | 14.81 |
| garderoba | 3.04 |
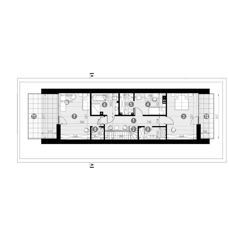
Rzut poddasza
| Pomieszczenie | Powierzchnia m2 |
| SCHODY | 4.08 |
| garderoba | 3.0 |
| taras | 16.91 |
| taras | 7.73 |
| PRALNIA | 2.71 |
| SYPIALNIA | 6.9 |
| ŁAZIENKA | 5.94 |
| SYPIALNIA | 16.45 |
| SYPIALNIA | 14.62 |
| – | |
| KOMUNIKACJA | 9.57 |
| GARDEROBA | 1.24 |
Zużycie energii
Projekt domu zgodny z przepisami WT 2017
Wskaźnik EP dla domu bez względu na rozwiązanie grzewcze: (szczegółowe dane w charakterystyce energetycznej)
EP < 63.8 kWh/m2*rok
Wskaźnik EP określa roczne zapotrzebowanie domu na nieodnawialną energię pierwotną do ogrzewania, wentylacji oraz przygotowania ciepłej wody użytkowej.
Koszt budowy
| KOSZTY MINIMALNE | KOSZTY ŚREDNIE | |
| STAN SUROWY ZAMKNIĘTY (SSZ) | 452886.0 | 520559.0 |
| STAN SUROWY ZAMKNIĘTY METODĄ GOSPODARCZĄ | 380424.0 | 447680.0 |
| PRACE WYKOŃCZENIOWE | 231897.0 | 266548.0 |
| INSTALACJE (W TYM WENTYLACJA MECHANICZNA) | 120209.0 | 135066.0 |
Pliki za darmo!
Więcej informacji na temat projektu
| Technologia | Opis |
|---|---|
| Fundamenty | tradycyjne – na ławach fundamentowych |
| Ściany | dwuwarstwowe pustak ceramiczny 25 cm + styropian Termo Organika 20 cm/wełna mineralna 18 cm |
| Stropy | żelbetowy wylewany |
| Dach | tradycyjna więźba dachowa pokryta panelami KARO z blachy tytanowo-cynkowej, system rynnowy Galeco BEZOKAPOWY, zadaszenia nad częścią tarasu – stropodach pełny o tradycyjnym układzie warstw |
| Elewacja | tynk silikonowy połączony z płytami elewacyjnymi oraz panele karo z blachy tytanowo cynkowej – krycie w stylu francuskim |
| Ogrzewanie | gazowe – piec kondensacyjny oraz ogrzewanie podłogowe w całym domu, dodatkowo w łazienkach tradycyjne grzejniki typu ręcznikowiec |
| Wentylacja | mechaniczna z rekuperacją |




















