Projekt dostępny również w odbiciu lustrzanym
Projekt domu Zgrabny 2 powstał jako wariantowa wersja projektu Zgrabny. Jest to dom jednorodzinny dla rodziny 4- 5-osobowej. Projekt domu Zgrabny 2 charakteryzuje się bardzo funkcjonalnym wnętrzem. W projekcie, na parterze oprócz salonu został zaprojektowany dodatkowy pokój i łazienka. Na poddaszu umieszczono trzy sypialnie, garderobę, dużą łazienkę oraz dodatkowy pokój nad garażem. Pracownia MG Projekt dysponuje projektem domku Zgrabny 2 w odbiciu lustrzanym oraz inne jego wersje: projekt domu Zgrabny, projekt domu Zgrabny 3, projekt domu Zgrabny 4, projekt domu Zgrabny 5, projekt domu Zgrabny z lukarnami, projekt domu Zgrabny z przedsionkiem. Zapraszamy!
Elewacje




Zestawienie pomieszczeń
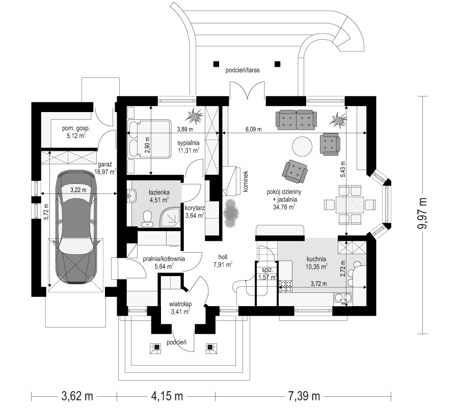
Parter

Piętro

Dodatkowe Informacje o Budynku
| Powierzchnia garażu: | 18,97 m2 |
| Powierzchnia strychu: | 14,37 m2 |
| Technologia wykonania: | |
| Typ budynku: | jednorodzinny |
| Styl: | tradycyjny |
| Ilość kondygnacji: | parterowy z poddaszem użytkowym |
| Poddasze: | poddasze użytkowe |
| Podpiwniczenie: | brak |
| Dach: | dwuspadowy |
Przeciętne Koszty budowy
| Pozycja | Koszt realizacji |
|---|---|
| Stan surowy otwarty | 152 731,00 zł |
| Stan surowy zamknięty | 232 693,00 zł |
| Roboty wykończeniowe | 247 547,00 zł |
| Stan deweloperski | 480 241,00 zł |
| Instalacje | 73 453,00 zł |
| Pokrycie dachu | 39 956,00 zł |


























