Projekt dostępny również w odbiciu lustrzanym
Projekt domu Wąski to dom jednorodzinny parterowy dla rodziny 4- 5-osobowej, przeznaczonego na wąską działkę, lub działkę z ogrodem z boku – ze względu na ustawienie względem słońca. Projekt domu można zbudować na działce o szerokości min 18,84 m i długości 30,36 m, powierzchnia użytkowa 137,23 m².
Projekt domu Wąski architektura
Projekt domu Wąski ma dość prostą bryłę, zorganizowaną na planie prostokąta, przykrytą czterospadowym dachem z niewielkimi dobudówkami. Architektura projektu domku Wąski jest nowoczesna. Dzięki dużym przeszkleniom, uzyskano atrakcyjny estetycznie budynek. Wejście do domu Wąski zaakcentowano podcieniem i reprezentacyjnymi drzwiami wejściowymi. W gotowym projekcie domku Wąski elewacje boczna i tylna mają z kolei największe przeszklenia z części dziennej, dzięki czemu taras stanowi idealne przedłużenie salonu. Masywny dach nad całością parteru nadaje budynkowi stylu i elegancji. Detale takie jak narożne podłużne okno kuchenne zaprojektowane między szafkami kuchennymi podkreślają nowoczesny styl domostwa. Ten projekt domu ma także duży, dwustanowiskowy garaż.
Projekt domu Wąski wnętrze
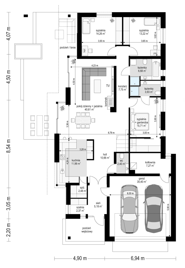
Do Wąskiego wchodzimy przez obszerny podcień do wygodnej sieni z szatnią, aby dalej przedostać się do otwartej dużej przestrzeni dziennej połączonych pomieszczeń holu, salonu, jadalni i kuchni. Kuchnia ze spiżarnią w projekcie domku Wąski jest częściowo oddzielona od reszty budynku ścianą z zabudową. W salonie projektu Wąski mamy ścianę telewizyjno – kominkową z centralnym trzystronnym kominkiem i piękne przeszklenia otwierające wnętrze na taras. Głębiej przechodząc dalej we wnętrzu projektu Wąski znajduje się korytarz, z którego rozchodzimy się do trzech sypialni, w tym dwóch sypialni dzieci z wbudowanymi szafami i łazienką, oraz oddzielnego apartamentu rodziców z własną łazienką i garderobą. Z przedsionka projektu Wąski przechodzimy do części garażowo – gospodarczej, z podwójnym garażem i dużą kotłownią. Projekt Wąski jest bardzo wygodny na parterze, a można jeszcze wykorzystać w nim strych, wykonując schody, które są wariantowo przewidziane z holu przy wc. Strych projektu Wąski to rezerwa dodatkowych około 40 m² powierzchni, którą można wykorzystać jako strych – magazyn, a można też ją adaptować na dodatkową przestrzeń dzienną – na przykład z extra dwoma pokojami w domu. Projekt domu Wąski to projekt wygodnego domu jednorodzinnego, o wystarczającej ilości miejsca do komfortowego mieszkania, pasujący przede wszystkim do wąskiej działki, lub działki z ograniczeniem szerokości elewacji frontowej.
Gotowy projekty domku Wąski jest energooszczędny, dość prosty w budowie. Koszt budowy projektu Wąski nie powinien być wysoki, dom jest tani w późniejszym utrzymaniu. Ten projekt domu na wąską działkę dostępny jest także w wersji odbicia lustrzanego.
Zapraszamy do zapoznania się z pełną ofertą pracowni MG Projekt: https://www.mgprojekt.com.pl/waski, https://www.mgprojekt.com.pl/waski-2, https://www.mgprojekt.com.pl/waski-3.
Elewacje




Zestawienie pomieszczeń
Parter

Piętro

Dodatkowe Informacje o Budynku
| Powierzchnia garażu: | 35,40 m2 |
| Powierzchnia strychu: | 0,00 m2 |
| Technologia wykonania: | |
| Typ budynku: | jednorodzinny |
| Styl: | miejski, tradycyjny |
| Ilość kondygnacji: | parterowy ze strychem |
| Poddasze: | strych |
| Podpiwniczenie: | brak |
| Dach: | wielospadowy |
Przeciętne Koszty budowy
| Pozycja | Koszt realizacji |
|---|---|
| Stan surowy otwarty | 304 757,00 zł |
| Stan surowy zamknięty | 402 549,00 zł |
| Roboty wykończeniowe | 323 535,00 zł |
| Stan deweloperski | 726 084,00 zł |
| Instalacje | 110 618,00 zł |
| Pokrycie dachu | 57 567,00 zł |




















