uA62 jest to interesująca propozycja projektu domu parterowego z piwnicą. Proporcjonalna sylwetka uA62 efektownie prezentuje się w oprawie jasnego tynku i naturalnej okładziny. Strefę wejścia do domu otwiera zadaszony podcień, natomiast bezpośredni dostęp do strefy dziennej możliwy jest poprzez wiatrołap. Układ ten podkreśla zapraszający charakter projektowanych wnętrz. Przestronną przestrzeń zaaranżowano dzięki zestawieniu funkcji: salonowej, kuchennej i jadalnej z hallem. Duże okna otwarte na przylegający zadaszony taras, zapewnią łączność domowników z otaczającą naturą. Korytarz umożliwia obsługę pozostałych pomieszczeń, w tym: dwóch pokoi przeznaczonych dla dzieci, znajdującej się po przeciwnej stronie sypialni, gabinetu i pomieszczeń pomocniczych. Wyodrębniono także trzecią, niezależną strefę użytkową korzystając z kondygnacji podziemnej. Pion gospodarczy o którym mowa, został odizolowany od części mieszkalnej i wyposażony w niezależne wejście z zewnątrz. Wśród pomieszczeń podziemnych znalazła swoje miejsce pralnia. Określane pomieszczenia zapewnią sprawną obsługę domu, a rozdzielone strefy funkcjonalne czystość i komfort akustyczny. uA62 cechuje bogaty program funkcjonalny przy zachowaniu granic optymalnej przestrzeni użytkowej.
Elewacje
Zestawienie pomieszczeń
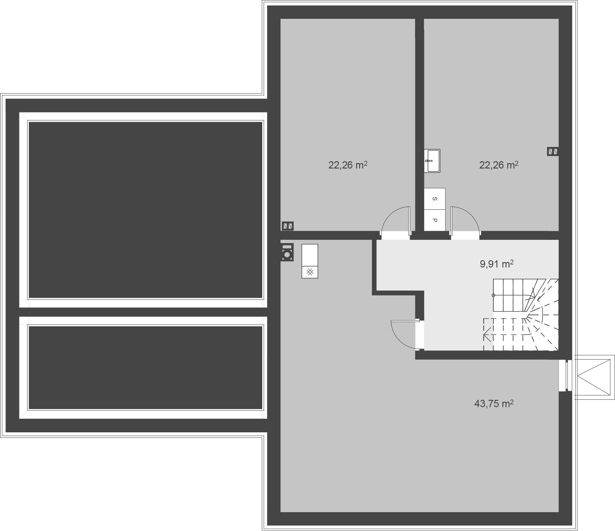
Parter
Usytuowanie na działce
Dodatkowe Informacje o Budynku
| Garaż: | brak |
| Dach: | wielospadowy |
| Technologia wykonania: | Murowana |




