Charakterystyka: Dom parterowy z
poddaszem do późniejszej adaptacji na cele mieszkalne, niepodpiwniczony, z
garażem dwustanowiskowym
Przeznaczenie: Dom dla 3-4-osobowej rodziny
Technologia i
konstrukcja:
Ściany zewnętrzne: murowane,
dwuwarstwowe, beton komórkowy Solbet 24 cm, ocieplenie styropian Termoorganika
20 cm
Ściany wewnętrzne: murowane, nośne i działowe beton komórkowy Solbet 24
cm i 12 cm
Strop: gęstożebrowy Teriva, ocieplenie wełna mineralna Isover Super-Mata 30 cm
Dach: konstrukcja drewniana, dachówka ceramiczna płaska Bergamo firmy Röben, więźba dachowa dostępna również w
systemie prefabrykacji drewnianej
Rozwiązania
instalacyjne:
Ogrzewanie: kocioł gazowy
kondensacyjny, rozprowadzenie ciepła: grzejniki
Wentylacja: grawitacyjna
OZE: kolektory słoneczne
Wykończenie:
Elewacje: tynk
cienkowarstwowy mineralny w kolorze TO-PA001 z palety firmy Termo Organika,
okładzina kamienna
Stolarka: drewniana, PVC lub aluminiowa, rolety zewnętrzne QuadBox firmy BeClever, drzwi wejściowe i brama garażowa firmy Hörmann
Otoczenie: system tarasowy
ProDeck – deska kompozytowa Terra w kolorze kasztan
Wersje domów w
serii Simon – zapytaj o dostępność:
– Simon – dom z poddaszem do adaptacji, 3 sypialnie, dach o kącie
nachylenia 30°
– Simon II – dom z poddaszem użytkowym, 3 sypialnie + gabinet, dach
o kącie nachylenia 35°
– Simon III – dom parterowy, 4 sypialnie, dach o kącie nachylenia
25°
– Simon IV – dom parterowy, 3 sypialnie, dach o kącie nachylenia
25°
– Simon (mały) – dom z poddaszem do adaptacji, mniejsza
powierzchnia użytkowa, 3 sypialnie, dach o kącie nachylenia 35°
– Simon III (wiązary) – system suchej zabudowy ścian
działowych Rigips, wiązary prefabrykowane, rozwiązania
materiałowo-technologiczne Grupy Saint-Gobain, układ funkcji jak w domu Simon
III G2, dom parterowy, 4 sypialnie, dach o kącie nachylenia 25°
– Simon IV (bliźniak) – dom parterowy w zabudowie bliźniaczej, 3
sypialnie, dach o kącie nachylenia 25°
– Simon 01 (dwulokalowy) – dom z dwoma mieszkaniami, z poddaszem do
adaptacji, dach o kącie nachylenia 30°
– wszystkie wersje o podobnym układzie funkcji oraz
z inną propozycją wykończenia elewacji
– wszystkie wersje z trzema wariantami garaży: bez garażu, z
garażem jedno- i dwustanowiskowym (wyjątek: dom dwulokalowy – tylko w wariancie
bez garażu)
– odbicie lustrzane do każdej wersji
Wszystkie wersje
domów możliwe w dwóch standardach/wariantach instalacyjnych:
– ENERGO: kocioł gazowy kondensacyjny, grzejniki, wentylacja
grawitacyjna, OZE: kolektory słoneczne
– ENERGO PLUS: pompa ciepła, ogrzewanie podłogowe, wentylacja
mechaniczna, OZE: kolektory słoneczne lub panele fotowoltaiczne
Istnieją techniczne możliwości wykonania zmian:
–
podpiwniczenia budynku
– zmiany kąta nachylenia dachu do 30° i adaptacji
poddasza na cele mieszkalne
– wykonania budynku w technologii szkieletowej
– dokonania zmian funkcjonalnych wg
indywidualnych wymagań
Elewacje




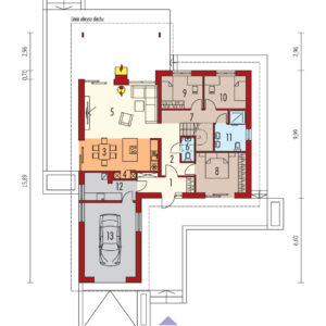
Zestawienie pomieszczeń

Parter
| Wiatrołap | 5.81 m2 |
| Hol + schody | 11.22 m2 |
| Kuchnia + jadalnia | 14.48 m2 |
| Spiżarnia | 0.80 m2 |
| Pokój dzienny | 24.13 m2 |
| Toaleta | 1.81 m2 |
| Korytarz | 5.11 m2 |
| Sypialnia | 12.00 m2 |
| Sypialnia | 8.14 m2 |
| Sypialnia | 8.14 m2 |
| Łazienka | 6.33 m2 |
| Kotłownia | 7.11 m2 |
| Garaż | 23.02 m2 |

Poddasze do adaptacji
| Poddasze do adaptacji | 48.97 m2 |
Przeciętne Koszty budowy
| Pozycja | Koszty uśrednione* |
|---|---|
| Stan surowy otwarty | 203333.00 zł |
| Stan surowy zamknięty | 250256.00 zł |
| Instalacje wewnętrzne | 41449.00 zł |
| Stan deweloperski | 414487.00 zł |
Dodatkowe Informacje o Budynku
| Rodzaj zabudowy: | wolnostojąca |
| Rodzaj projektu: | dom |
| Kominek: | możliwość podłączenia |
| Garaż: | |
| Powierzchnia strychu: | 0.00 m2 |
| Dach: | wielospadowy |
| Liczba kondygnacji: | parterowy |
| Liczba pokoi: | 3 |
| Liczba sypialni: | 1 |
| Liczba łazienek: | 1 |






















