Projekt dostępny również w odbiciu lustrzanym
Projekt domu Pierwszy Dom 2 to wersja z garażem wysuniętym przed front domu. Budynek doskonale pasuje na wąską działkę. Prosta konstrukcja i oszczędność formy sprawiają, że będzie niedrogi w budowie. Funkcjonalne wnętrze mieści: na parterze obszerny salon z półotwartą kuchnią, pomieszczenie gospodarcze, garaż i dodatkowy pokój, na poddaszu trzy sypialnie i łazienkę. Pracownia dysponuje wersją z garażem z boku, pod nazwa Pierwszy Dom 3, oraz bez garażu, pod nazwą Pierwszy Dom. Dostępna jest również wersja krótsza – bez dodatkowego pokoju na parterze, oraz projekt domu Pierwszy Dom 2 w lustrzanym odbiciu. Podstawowa wersja projektu występuje w wersji z dwoma oknami lub jednym oknem w ścianie szczytowej na poddaszu nad wejściem. Inne propozycje tej serii: projekt domu Pierwszy Dom 1, projekt domu Pierwszy Dom 2, projekt domu Pierwszy Dom 3.
Elewacje
Zestawienie pomieszczeń
Parter
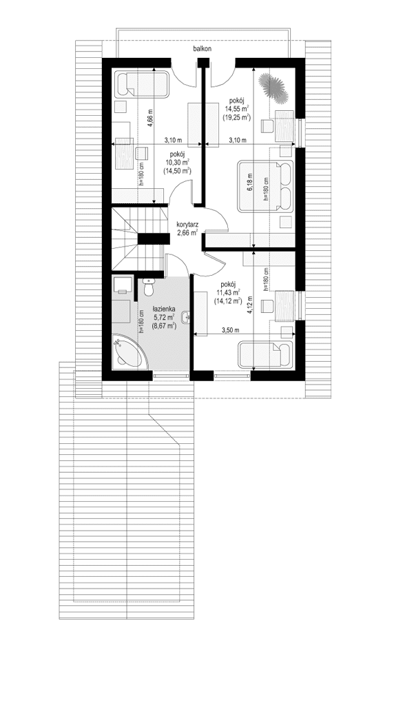
Piętro
Dodatkowe Informacje o Budynku
| Powierzchnia garażu: | 21,48 m2 |
| Powierzchnia strychu: | 0,00 m2 |
| Technologia wykonania: | |
| Typ budynku: | jednorodzinny |
| Styl: | tradycyjny |
| Ilość kondygnacji: | parterowy z poddaszem użytkowym |
| Poddasze: | poddasze użytkowe |
| Podpiwniczenie: | brak |
| Dach: | dwuspadowy |
Przeciętne Koszty budowy
| Pozycja | Koszt realizacji |
|---|---|
| Stan surowy otwarty | 133 488,00 zł |
| Stan surowy zamknięty | 197 546,00 zł |
| Roboty wykończeniowe | 211 639,00 zł |
| Stan deweloperski | 409 185,00 zł |
| Instalacje | 82 065,00 zł |
| Pokrycie dachu | 36 412,00 zł |






