Projekt dostępny również w odbiciu lustrzanym
Projekt domu Oliwka to projekt parterowego domu jednorodzinnego, dla czteroosobowej rodziny, ze strychem do adaptacji, przekrytym dwuspadowym symetrycznym dachem. Prosta nowoczesna bryła budynku ozdobiona jest oryginalną stolarką okienną, oraz drewnianymi i klinkierowymi okładzinami ścian. Tradycyjna forma parterowego domu zaprojektowanego na planie prostokąta, została połączona z nowoczesnym detalem i materiałami. Elewację frontową Oliwki urozmaica podcień wejściowy i drewniana okładzina ściany. Narożne okno kuchni dodaje frontowi charakteru. Dom od strony ogrodu z kolei wzbogacają: narożny podcień zadaszenia tarasu i szerokie przeszklenia salonu. Współczesna stylistyka domu bardzo łatwo daje się modelować i modyfikować – Oliwka równie dobrze może mieć dach z dachówki, czy ściany z boniowaniem. Wnętrze ma tradycyjny układ czteropokojowego parterowego domu jednorodzinnego. Czytelny jest podział na cześć dzienną, z salonem, jadalnią, kuchnią i holem, oraz cześć nocną – z sypialniami i łazienkami. Gazowa kotłownia zlokalizowana przy wejściu może być łatwo dostosowana do pieca na paliwo stałe. Pokój dzienny z aneksem jadalnym jest bardzo ustawny. Jest tu świetne miejsce na meble wypoczynkowe, kominek, a także ścianę TV. Kuchnia posiada własną spiżarkę – marzenie niejednej pani domu. Trzy wygodne sypialnie z przewidzianymi ścianami na szafy wbudowane graniczą z dwiema łazienkami. Mała łazienka z wc i natryskiem pełni rolę codziennej toalety i dodatkowej łazienki zarazem. Schody w korytarzu wiodą nas na strych, który właściciele mogą dowolnie wykorzystać: jako dodatkową przestrzeń magazynową, lub powierzchnię użytkową. Projekt domu Oliwka zaprojektowano jako energooszczędny, z wykorzystaniem nowoczesnych materiałów, instalacji i technologii. Dzięki temu będzie tani w budowie i w późniejszym utrzymaniu. Podstawowa wersja Oliwki nie posiada garażu, ale z łatwością można doprojektować do niej pojedynczy lub podwójny garaż. Można też dołączyć do budynku garaż wolnostojący. Pracownia posiada projekt domu Oliwka w odbiciu lustrzanym.
Elewacje
Zestawienie pomieszczeń
Parter
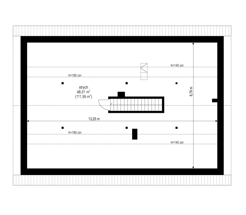
Piętro
Dodatkowe Informacje o Budynku
| Powierzchnia garażu: | 0,00 m2 |
| Powierzchnia strychu: | 0,00 m2 |
| Technologia wykonania: | |
| Typ budynku: | jednorodzinny |
| Styl: | nowoczesny |
| Ilość kondygnacji: | parterowy |
| Poddasze: | strych |
| Podpiwniczenie: | brak |
| Dach: | dwuspadowy |
Przeciętne Koszty budowy
| Pozycja | Koszt realizacji |
|---|---|
| Stan surowy otwarty | 165 678,00 zł |
| Stan surowy zamknięty | 232 033,00 zł |
| Roboty wykończeniowe | 219 146,00 zł |
| Stan deweloperski | 451 178,00 zł |
| Instalacje | 60 242,00 zł |
| Pokrycie dachu | 25 882,00 zł |






