Charakterystyka:
Dom parterowy, niepodpiwniczony, z garażem jednostanowiskowym
Przeznaczenie: Dom dla 3-4-osobowej rodziny
Technologia
i konstrukcja:
Fundamenty: ławy, bloczki betonowe 24 cm, ocieplenie styropian 15 cm
Ściany
zewnętrzne: murowane, dwuwarstwowe, beton komórkowy firmy
Solbet 24 cm, ocieplenie 20
cm
Podłoga na gruncie: płyta betonowa, ocieplenie styropian 15 cm
Strop i stropodach nad garażem: strop międzypiętrowy gęstożebrowy
Teriva, stropodach pełny: ocieplenie styropian 30 cm
Dach: konstrukcja drewniana, ocieplenie wełna mineralna 30 cm, dachówka płaska lub
inna o podobnych parametrach
Inne: schody wewnętrzne drewniane
Instalacje:
Ogrzewanie: kocioł gazowy, rozprowadzenie ciepła: grzejniki
Wentylacja: grawitacyjna
OZE: kolektory słoneczne
Wykończenie:
Elewacje: tynk cienkowarstwowy mineralny, okładzina z płyty HPL z
naturalną okleiną drewnianą firmy Prodema i okładzina klinkierowa
Stolarka:
drewniana, PCV lub aluminiowa
Inne: żaluzja ozdobna drewniana
Okna połaciowe: rozwiązania technologiczne firmy VELUX, wyłaz dachowy
VELUX
Pobierz ekspercki poradnik VELUX i dowiedz się jak wybrać okna dachowe
Wersje w serii Lars – zapytaj o dostępność:
– Lars (wersja A) – wersja podstawowa
– Lars (wersja B) – inne wykończenie elewacji, dach bez okapów
– Lars (wersja B) ENERGO PLUS – instalacje energooszczędne: pompa ciepła, wentylacja mechaniczna z rekuperacją, system fotowoltaiczny
oraz ogrzewanie podłogowe firmy Purmo
– wszystkie
wersje o takim samym układzie funkcji oraz z inną propozycją
wykończenia elewacji
– wszystkie wersje z dwoma wariantami garaży: z garażem jedno- i
dwustanowiskowym
– odbicie lustrzane do każdej wersji
Wszystkie wersje domów możliwe w dwóch standardach/wariantach
instalacyjnych:
– ENERGO: kocioł gazowy kondensacyjny, grzejniki, wentylacja
grawitacyjna, OZE: kolektory słoneczne
– ENERGO PLUS: pompa ciepła, ogrzewanie podłogowe, wentylacja mechaniczna,
OZE: kolektory słoneczne lub panele fotowoltaiczne
Istnieją techniczne możliwości wykonania
zmian:
–
podpiwniczenia budynku
– wykonania budynku w technologii szkieletowej
– zbliźniaczenia lub wykonania domu dwulokalowego
– dokonania zmian funkcjonalnych wg indywidualnych wymagań
Elewacje




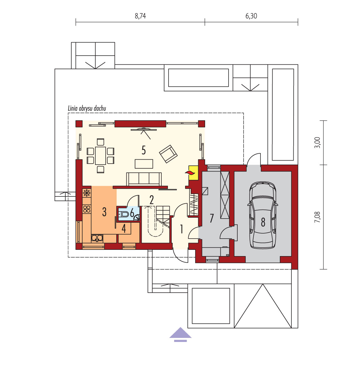
Zestawienie pomieszczeń

Parter
| Wiatrołap | 3.10 m2 |
| Hol + schody | 12.23 m2 |
| Kuchnia | 8.44 m2 |
| Spiżarnia | 1.96 m2 |
| Pokój dzienny + jadalnia | 31.14 m2 |
| Toaleta | 1.19 m2 |
| Kotłownia | 10.53 m2 |
| Garaż | 22.12 m2 |

Poddasze
| Korytarz | 5.88 m2 |
| Sypialnia | 12.75 m2 |
| Garderoba | 2.45 m2 |
| Sypialnia | 11.40 m2 |
| Sypialnia | 10.01 m2 |
| Łazienka | 8.12 m2 |
Przeciętne Koszty budowy
| Pozycja | Koszty uśrednione* |
|---|---|
| Stan surowy otwarty | 246285.00 zł |
| Stan surowy zamknięty | 303120.00 zł |
| Instalacje wewnętrzne | 50204.00 zł |
| Stan deweloperski | 502043.00 zł |
Dodatkowe Informacje o Budynku
| Rodzaj zabudowy: | wolnostojąca |
| Rodzaj projektu: | dom |
| Kominek: | możliwość podłączenia |
| Garaż: | |
| Powierzchnia strychu: | 0.00 m2 |
| Dach: | dwuspadowy |
| Liczba kondygnacji: | parterowy z poddaszem użytkowym |
| Liczba pokoi: | 3 |
| Liczba sypialni: | 1 |
| Liczba łazienek: | 1 |






















