Prosty, funkcjonalny dom jednorodzinny z użytkowym poddaszem, garażem, przeznaczony dla 4 – 5-osobowej rodziny. Dom posiada duży zadaszony taras dostępny z salonu. Niewielkie rozmiary domu pozwalają na usytuowanie go na małej działce.
Elewacje
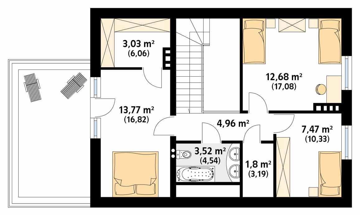
Zestawienie pomieszczeń
parter
| wiatrołap | 3.81 m2 |
| korytarz/komunikacja | 5.04 m2 |
| wc | 2.32 m2 |
| salon | 23.78 m2 |
| kuchnia/jadalnia | 15 m2 |
| schody | 5.24 m2 |
| kotłownia | 6.06 m2 |
| garaż | 35.67 m2 |
poddasze
| korytarz/komunikacja | 4.96 m2 |
| sypialnia | 13.77 m2 |
| garderoba | 3.03 m2 |
| sypialnia | 12.68 m2 |
| sypialnia | 7.47 m2 |
| garderoba | 1.8 m2 |
| łazienka | 3.52 m2 |
Przeciętne Koszty budowy
| Pozycja | Koszt realizacji |
|---|---|
| Całkowity | 481 734,00 zł |
| Stan surowy zamknięty | 319 089,00 zł |
| Stolarka | 49 531,00 zł |




















