Charakterystyka: Dom parterowy z poddaszem użytkowym, niepodpiwniczony
Przeznaczenie: Dom dla 4-5 osobowej rodziny
Technologia i konstrukcja:
Ściany zewnętrzne: murowane, dwuwarstwowe, beton komórkowy 24 cm, ocieplenie wełna mineralna 12 cm
Ściany wewnętrzne: nośne i działowe murowane cegła wapienno-piaskowa 24 cm i 12 cm
Strop: międzypiętrowy, gęstożebrowy Teriva
Dach: konstrukcja drewniana, ocieplenie wełna mineralna 25 cm, dachówka ceramiczna płaska Bergamo firmy Röben
Inne: schody wewnętrzne drewniane
Rozwiązania instalacyjne:
Ogrzewanie: kocioł gazowy kondensacyjny firmy Viessmann,
rozprowadzenie ciepła: grzejniki firmy Purmo
Wentylacja: grawitacyjna
OZE: kolektory słoneczne firmy Viessmann
Dodatkowo: stacja uzdatniania wody firmy Viessmann
Wykończenie:
Elewacje: tynk cienkowarstwowy mineralny w kolorze białym i grafitowym, okładzina drewniana
Stolarka: drewniana,
PVC lub aluminiowa, drzwi wejściowe firmy Hörmann
Okna połaciowe: rozwiązania technologiczne firmy Velux, świetlik dachowy firmy Velux
Otoczenie: kostka
betonowa i płyty tarasowe, system tarasowy – deska
kompozytowa
Dostępne wersje:
– Odbicie lustrzane
Istnieje możliwość:
–
podpiwniczenia budynku
– zbliźniaczenia
– wykonania domu dwulokalowego
Elewacje




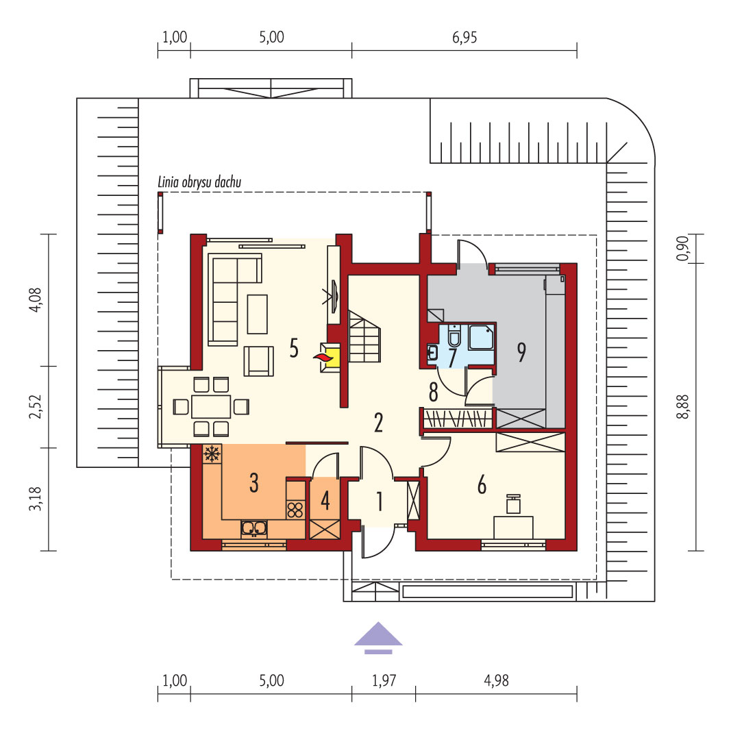
Zestawienie pomieszczeń

Parter
| Wiatrołap | 2.57 m2 |
| Hol + schody | 15.51 m2 |
| Kuchnia | 8.58 m2 |
| Spiżarnia | 1.65 m2 |
| Pokój dzienny + jadalnia | 28.58 m2 |
| Gabinet | 14.04 m2 |
| Łazienka | 2.30 m2 |
| Garderoba | 4.00 m2 |
| Kotłownia | 12.99 m2 |

Poddasze
| Korytarz | 6.17 m2 |
| Sypialnia | 19.58 m2 |
| Garderoba | 3.91 m2 |
| Sypialnia | 13.83 m2 |
| Sypialnia | 13.85 m2 |
| Łazienka | 8.69 m2 |
Przeciętne Koszty budowy
| Pozycja | Koszty uśrednione* |
|---|---|
| Stan surowy otwarty | 184150.00 zł |
| Stan surowy zamknięty | 239395.00 zł |
| Instalacje wewnętrzne | 36830.00 zł |
| Stan deweloperski | 368300.00 zł |
Dodatkowe Informacje o Budynku
| Rodzaj zabudowy: | wolnostojąca z możliwością zbliźniaczenia |
| Rodzaj projektu: | dom |
| Kominek: | możliwość podłączenia |
| Garaż: | brak |
| Powierzchnia strychu: | 0.00 m2 |
| Dach: | dwuspadowy |
| Liczba kondygnacji: | parterowy z poddaszem użytkowym |
| Liczba pokoi: | 4 |
| Liczba sypialni: | 1 |
| Liczba łazienek: | 1 |






















