Jaśmin 2 to dom mieszkalny zaprojektowany w technologii szkieletu drewnianego z myślą o 4-osobowej rodzinie. Na stosunkowo niewielkiej powierzchni znajduje się salon z kominkiem i wyjściem na zadaszony taras, kuchnia ze spiżarnią, kotłownia oraz wc. Na poddaszu została zlokalizowana cześć nocna, na którą składają się cztery sypialnie. Dwie z nich posiadają wyjście na zadaszony balkon. Dom z powodzeniem może pełnić rolę domu rekreacyjnego.
Elewacje
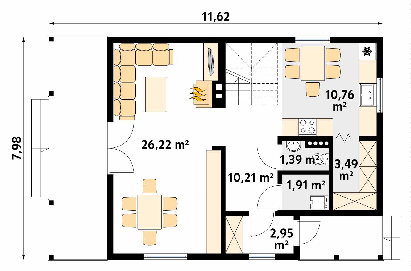
Zestawienie pomieszczeń
parter
| wiatrołap | 2.95 m2 |
| korytarz/komunikacja | 10.21 m2 |
| salon | 26.22 m2 |
| kuchnia | 10.76 m2 |
| spiżarnia | 3.49 m2 |
| wc | 1.39 m2 |
| pomieszczenie gospodarcze | 1.91 m2 |
poddasze
| korytarz/komunikacja | 2.81 m2 |
| sypialnia | 10.78 m2 |
| sypialnia | 8.15 m2 |
| łazienka | 7.29 m2 |
| sypialnia | 10.42 m2 |
Przeciętne Koszty budowy
| Pozycja | Koszt realizacji |
|---|---|
| Całkowity | 182 607,00 zł |
| Stan surowy zamknięty | 106 916,00 zł |
| Stolarka | 14 504,00 zł |




















