Projekt dostępny również w odbiciu lustrzanym
Projekt domu Benedykt to duży, reprezentacyjny dom jednorodzinny nawiązujący do architektury dworkowej – jednak w bardziej nowoczesnym ujęciu. Szerokie, centralnie umieszczone wejście domu akcentuje osiowy podział elewacji frontowej. Bryła została przykryta dużym, wielospadowym dachem, poprzecinanym ciekawymi lukarnami z balkonami. We wnętrzu domu Benedykt zaplanowano obszerny hol z salonem, wydzieloną jadalnią i dużą zamykaną kuchnię. Na parterze zaprojektowano gabinet i pomieszczenia techniczne oraz dwustanowiskowy garaż. Na poddaszu – sypialnię rodziców z własną garderobą i łazienką oraz trzy sypialnie dzieci i łazienkę. W projekcie domu Benedykt strych nad garażem może zostać zaadoptowany na dodatkowe pomieszczenie gospodarcze. Zapraszamy do zapoznania się z pełną ofertą pracowni MG Projekt: projekt domu Benedykt, projekt domu Benedykt 2, projekt domu Benedykt 3, projekt domu Benedykt 4, projekt domu Benedykt 5, projekt domu Benedykt Bliźniak.
Elewacje
Zestawienie pomieszczeń
Parter
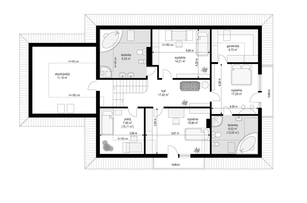
Piętro
Dodatkowe Informacje o Budynku
| Powierzchnia garażu: | 31,68 m2 |
| Powierzchnia strychu: | 11,14 m2 |
| Technologia wykonania: | |
| Typ budynku: | jednorodzinny |
| Styl: | dworek |
| Ilość kondygnacji: | parterowy z poddaszem użytkowym |
| Poddasze: | poddasze użytkowe |
| Podpiwniczenie: | brak |
| Dach: | wielospadowy |
Przeciętne Koszty budowy
| Pozycja | Koszt realizacji |
|---|---|
| Stan surowy otwarty | 281 972,00 zł |
| Stan surowy zamknięty | 402 495,00 zł |
| Roboty wykończeniowe | 400 367,00 zł |
| Stan deweloperski | 802 862,00 zł |
| Instalacje | 121 525,00 zł |
| Pokrycie dachu | 65 756,00 zł |






