Projekt dostępny również w odbiciu lustrzanym
Projekt domu Bajkowy 2 stanowi rozbudowaną wersję projektu Bajkowy. Pierwotny projekt został poszerzony, zrezygnowano też z dodatkowego pokoju na parterze na rzecz powiększenia salonu i kuchni. Obszerny salon z centralnie ustawionym kominkiem i doświetleniem z trzech stron jest bardzo atrakcyjny. W projekcie Bajkowy 2 zaplanowano łazienkę z aneksem gospodarczym z miejscem na kocioł c.o. i pralkę. Na poddaszu budynku zaplanowano trzy sypialnie i drugą łazienkę. Bryła domu nawiązuje do tradycyjnej architektury. Atutem projektu jest uniwersalne położenie i doświetlenie salonu, dzięki czemu dom nadaje się na różne działki. Zapraszamy do zapoznania się z pełną ofertą pracowni MG Projekt: podstawowy projekt domu Bajkowy, komfortowa wersja projekt domu Bajkowy 3, oraz odbicie lustrzane projektu.
Elewacje




Zestawienie pomieszczeń
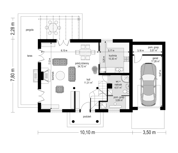
Parter

Piętro

Dodatkowe Informacje o Budynku
| Powierzchnia garażu: | 17,26 m2 |
| Powierzchnia strychu: | 0,00 m2 |
| Technologia wykonania: | |
| Typ budynku: | jednorodzinny |
| Styl: | tradycyjny |
| Ilość kondygnacji: | parterowy z poddaszem użytkowym |
| Poddasze: | poddasze użytkowe |
| Podpiwniczenie: | brak |
| Dach: | dwuspadowy |
Przeciętne Koszty budowy
| Pozycja | Koszt realizacji |
|---|---|
| Stan surowy otwarty | 147 703,00 zł |
| Stan surowy zamknięty | 196 095,00 zł |
| Roboty wykończeniowe | 215 030,00 zł |
| Stan deweloperski | 411 125,00 zł |
| Instalacje | 79 964,00 zł |
| Pokrycie dachu | 33 676,00 zł |


























