ASPEN to projekt domu w zabudowie bliźniaczej posiadający dwa różne segmenty. Projekt cechuje nowoczesne wykończenie oraz świetnie przemyślany układ funkcjonalny. Powierzchnia użytkowa obu segmentów jest bardzo podobna i wynosi ok. 150 m2. Segment lewy na parterze posiada otwartą część dzienną z salonem, jadalnią i kuchnią, pomieszczenie gospodarcze z miejscem na pompę ciepła oraz niewielką łazienkę. Na poddaszu zaprojektowano dwie sypialnie oraz rodzinną łazienkę. W segmencie prawym na parterze odnaleźć można otwartą część dzienną z salonem, jadalnią i kuchnią oraz dodatkowy pokój idealny do pracy i nauki. Część nocna to trzy wygodne sypialnie oraz ogólnodostępna łazienka.
Elewacje
Zestawienie pomieszczeń
parter
| wiatrołap | 3.05 m2 |
| łazienka | 4.75 m2 |
| pomieszczenie techniczne | 2.34 m2 |
| spiżarnia | 6.1 m2 |
| korytarz/komunikacja | 12.43 m2 |
| salon/kuchnia | 38.09 m2 |
| garaż | 27.15 m2 |
| wiatrołap | 3.68 m2 |
| korytarz/komunikacja | 9.32 m2 |
| pokój | 10.37 m2 |
| łazienka | 3.23 m2 |
| salon/kuchnia | 38.94 m2 |
| kotłownia | 6.57 m2 |
| garaż | 19.96 m2 |
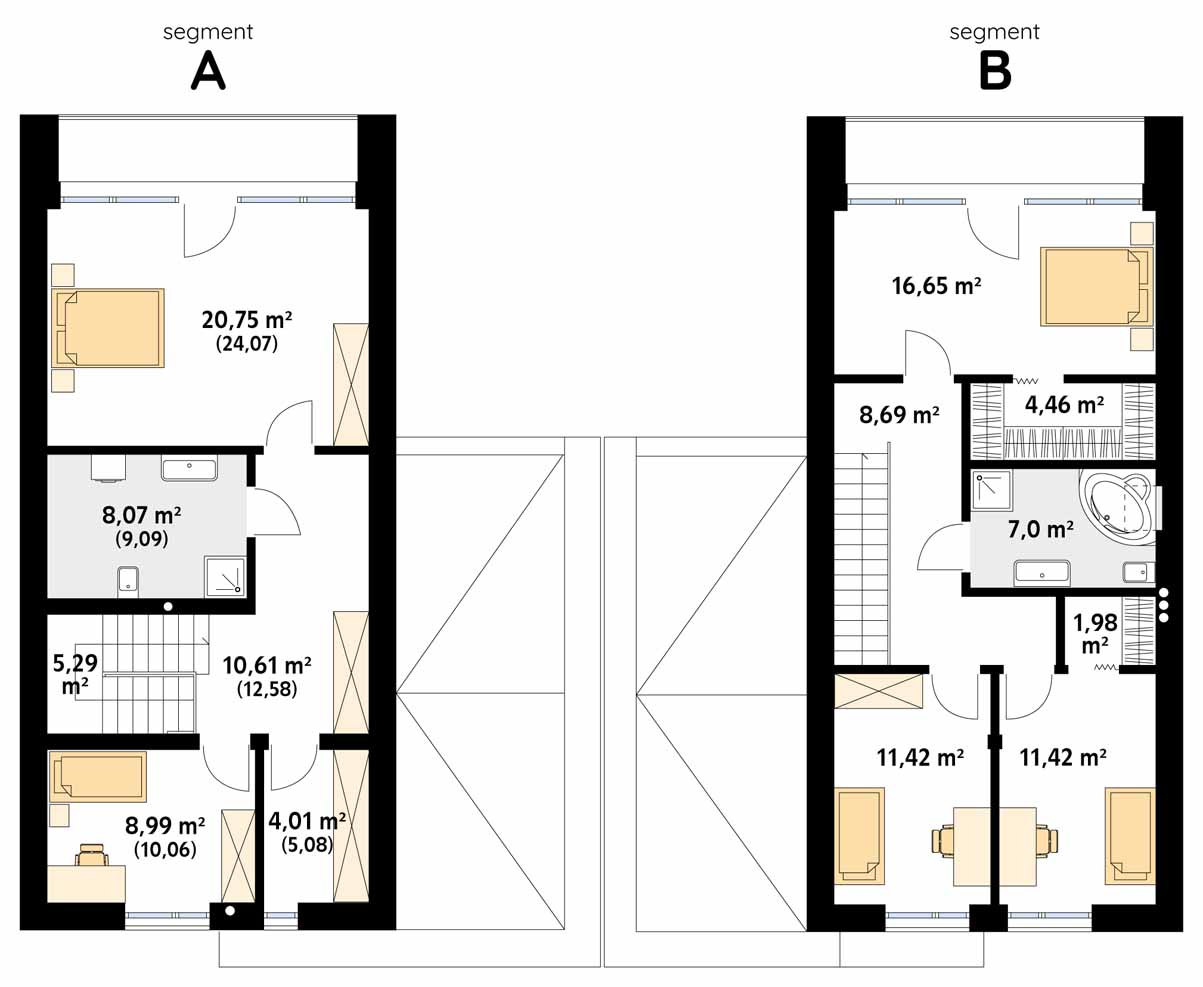
poddasze
| korytarz/komunikacja | 10.61 m2 |
| sypialnia | 20.75 m2 |
| łazienka | 8.07 m2 |
| schody | 5.29 m2 |
| sypialnia | 8.99 m2 |
| garderoba | 4.01 m2 |
| sypialnia | 11.42 m2 |
| sypialnia | 11.42 m2 |
| garderoba | 1.98 m2 |
| łazienka | 7 m2 |
| garderoba | 4.46 m2 |
| sypialnia | 16.65 m2 |
Przeciętne Koszty budowy
| Pozycja | Koszt realizacji |
|---|---|
| Całkowity | 0,00 zł |
| Stan surowy zamknięty | 0,00 zł |
| Stolarka | 0,00 zł |






















