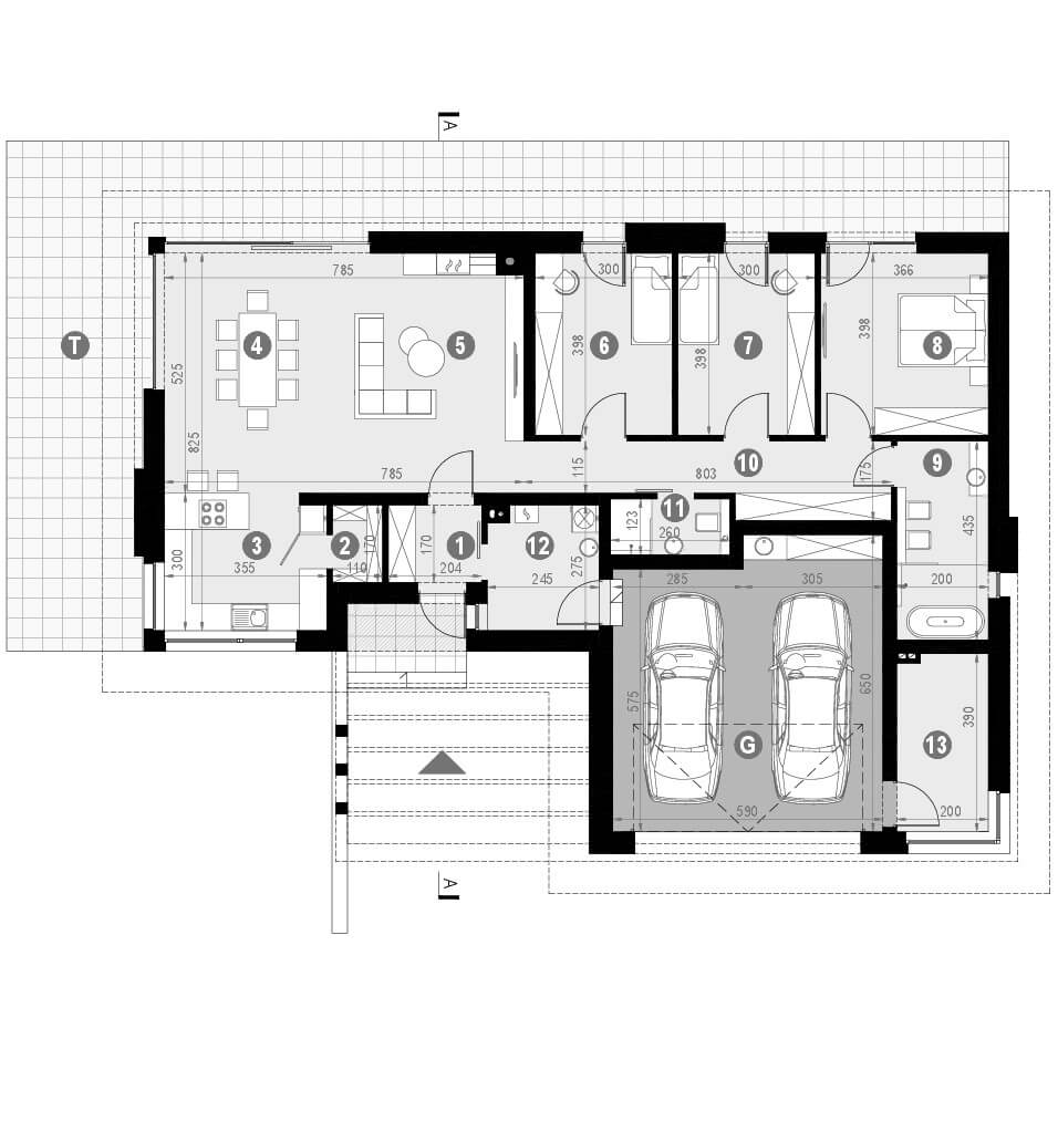
Rzut parteru
| Pomieszczenie | Powierzchnia m2 |
| POM. GOSPODARCZE | 7.69 |
| SYPIALNIA | 14.57 |
| WIATROŁAP | 3.47 |
| SYPIALNIA | 11.94 |
| TARAS | 70.51 |
| SALON | 26.22 |
| ŁAZIENKA | 3.2 |
| KOMUNIKACJA | 11.28 |
| SYPIALNIA | 11.94 |
| JADALNIA | 14.7 |
| – | |
| ŁAZIENKA | 8.7 |
| KOTŁOWNIA/PRALNIA | 6.54 |
| GARAŻ | 36.21 |
| SPIŻARNIA | 1.87 |
| KUCHNIA | 10.5 |
| – |
Zużycie energii
Projekt domu zgodny z przepisami WT 2017
Wskaźnik EP dla domu bez względu na rozwiązanie grzewcze: (szczegółowe dane w charakterystyce energetycznej)
EP < 69.23 kWh/m2*rok
Wskaźnik EP określa roczne zapotrzebowanie domu na nieodnawialną energię pierwotną do ogrzewania, wentylacji oraz przygotowania ciepłej wody użytkowej.
Koszt budowy
| KOSZTY MINIMALNE | KOSZTY ŚREDNIE | |
| STAN SUROWY ZAMKNIĘTY (SSZ) | 392633.0 | 451303.0 |
| STAN SUROWY ZAMKNIĘTY METODĄ GOSPODARCZĄ | 329812.0 | 388120.0 |
| PRACE WYKOŃCZENIOWE | 205176.0 | 235835.0 |
| INSTALACJE (W TYM WENTYLACJA MECHANICZNA) | 110472.0 | 124126.0 |
Pliki za darmo!
Więcej informacji na temat projektu
| Technologia | Opis |
|---|---|
| Fundamenty | tradycyjne – na ławach fundamentowych |
| Ściany | dwuwarstwowe – pustak ceramiczny 25 cm + styropian Termo Organika 20 cm/wełna mineralna 18 cm |
| Stropy | żelbetowy wylewany |
| Dach | tradycyjna więźba dachowa pokryta dachówką ceramiczną lub cementową CREATON |
| Elewacja | tynk silikownowy w kolorze grafitowym połączony z drewnem elewacyjnym |
| Ogrzewanie | gazowe – piec kondensacyjny oraz ogrzewanie podłogowe w salonie, kuchni, jadalni, łazience, toalecie, pralni, wiatrołapie i części komunikacyjnej, tradycyjne grzejniki w pozostałych pomieszczeniach |
| Wentylacja | mechaniczna z rekuperacją |















