Projekt dostępny również w odbiciu lustrzanym
Projekt domu Żabka 3 to dom jednorodzinny dla 3- 5-osobowej rodziny, parterowego, ze strychem do dowolnej adaptacji (na cele użytkowe). Projekt domu Żabka 3 to wariant projektu Żabka, ze schodami na strych, strychem, oraz trzema sypialniami na parterze. Dzięki zwartej bryle i prostej konstrukcji dom jest bardzo ekonomiczny. Stosunek uzyskanej powierzchni domu, do kosztu budowy jest w porównaniu do konkurencyjnych projektów niezwykle korzystny. Prosta konstrukcja idzie w parze z łatwością wybudowania domu i niskim kosztem realizacji. Żabka 3 jest przy tym bardzo ładnym domkiem. Zachowane właściwe proporcje, tradycyjna forma architektoniczna, oraz nowoczesne materiały i detale, tworzą atrakcyjny wygląd zewnętrzny. Domek prezentuje się okazale. Wejście domu podkreślone jest zadaszeniem na kolumienkach. Z tyłu, od strony ogrodu elewację ozdabia podcień i taras. Wewnątrz na parterze wprowadzono następujący podział: po prawej stronie znajduje się część dzienna, z salonem i kuchnią, dostępna z obszernego holu. Z lewej strony umieszczono trzy niewielkie sypialnie domowników, łazienkę, oraz wc. Sypialnie można dowolnie dzielić – oddzielają je ścianki działowe, łatwe do dowolnego przestawiania. Przy przedsionku z szafami zaprojektowano pomieszczenie gospodarcze – kotłownię. Gazowa kotłownia może być bez kłopotu zastąpiona kotłem na paliwo stałe. Z bardzo ładnego holu schodami można dostać się na strych. Klatka schodowa oddzielona jest ścianami od pomieszczenia strychu – strych może być nieogrzewany. Projekt domu Żabka 3 to doskonała propozycja dla oszczędnych Inwestorów. Łatwa i klarowna konstrukcja pozwoli zmieścić się w niskim koszcie z budową, a doskonałe izolacje, energooszczędne materiały i technologie zapewnią przyszłym użytkownikom niewielkie koszty utrzymania domu. Pracownia posiada wersję podstawową – bez poddasza, lub wersję z zagospodarowanym poddaszem użytkowym. Posiadamy projekt w odbiciu lustrzanym oraz inne wersje: Projekt domu Żabka, Projekt domu Żabka 2. Zapraszamy!
Elewacje




Zestawienie pomieszczeń
Parter

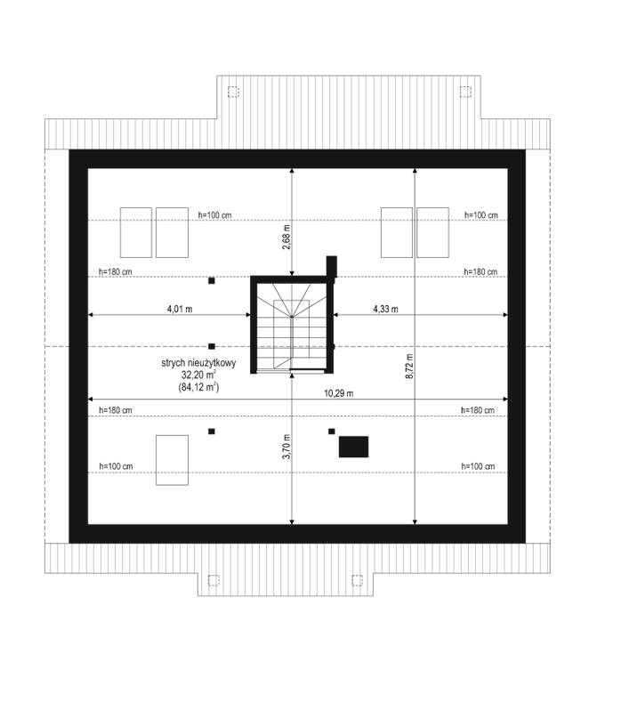
Piętro

Dodatkowe Informacje o Budynku
| Powierzchnia garażu: | 0,00 m2 |
| Powierzchnia strychu: | 32,20 m2 |
| Technologia wykonania: | |
| Typ budynku: | jednorodzinny |
| Styl: | miejski, tradycyjny |
| Ilość kondygnacji: | parterowy |
| Poddasze: | poddasze do adaptacjii |
| Podpiwniczenie: | brak |
| Dach: | dwuspadowy |
Przeciętne Koszty budowy
| Pozycja | Koszt realizacji |
|---|---|
| Stan surowy otwarty | 123 948,00 zł |
| Stan surowy zamknięty | 175 089,00 zł |
| Roboty wykończeniowe | 234 407,00 zł |
| Stan deweloperski | 409 497,00 zł |
| Instalacje | 70 129,00 zł |
| Pokrycie dachu | 25 432,00 zł |


























