Projekt dostępny również w odbiciu lustrzanym
Projekt domu Willa Parkowa to projekt stylowej willi jednorodzinnej, przeznaczonej dla 4-5 osobowej rodziny, parterowej, z niewielkim poddaszem użytkowym.
Dom jest kontynuacją projektów domów z serii Rezydencja parkowa, jednak tym razem chociaż projekt Willa Parkowa jest mniejszy – mieści niemal te same funkcje i ilość pomieszczeń, jednak na powierzchni użytkowej parteru 160 m2 plus dwustanowiskowy duży garaż.
Rozłożysta bryła projektu Willa Parkowa przykryta wielospadowym dachem łączy główną bryłę, oraz dobudowany garaż od frontu i duży zadaszony taras od strony ogrodowej.
Elewację frontową domostwa ozdabia reprezentacyjny portyk wejściowy z kolumnami. Projekt parterowego domu jednorodzinnego Willa Parkowa utrzymany jest w stylistyce podmiejskiej rezydencji. Detale architektoniczne podkreślają klasyczny styl projektu domu Willa Parkowa.
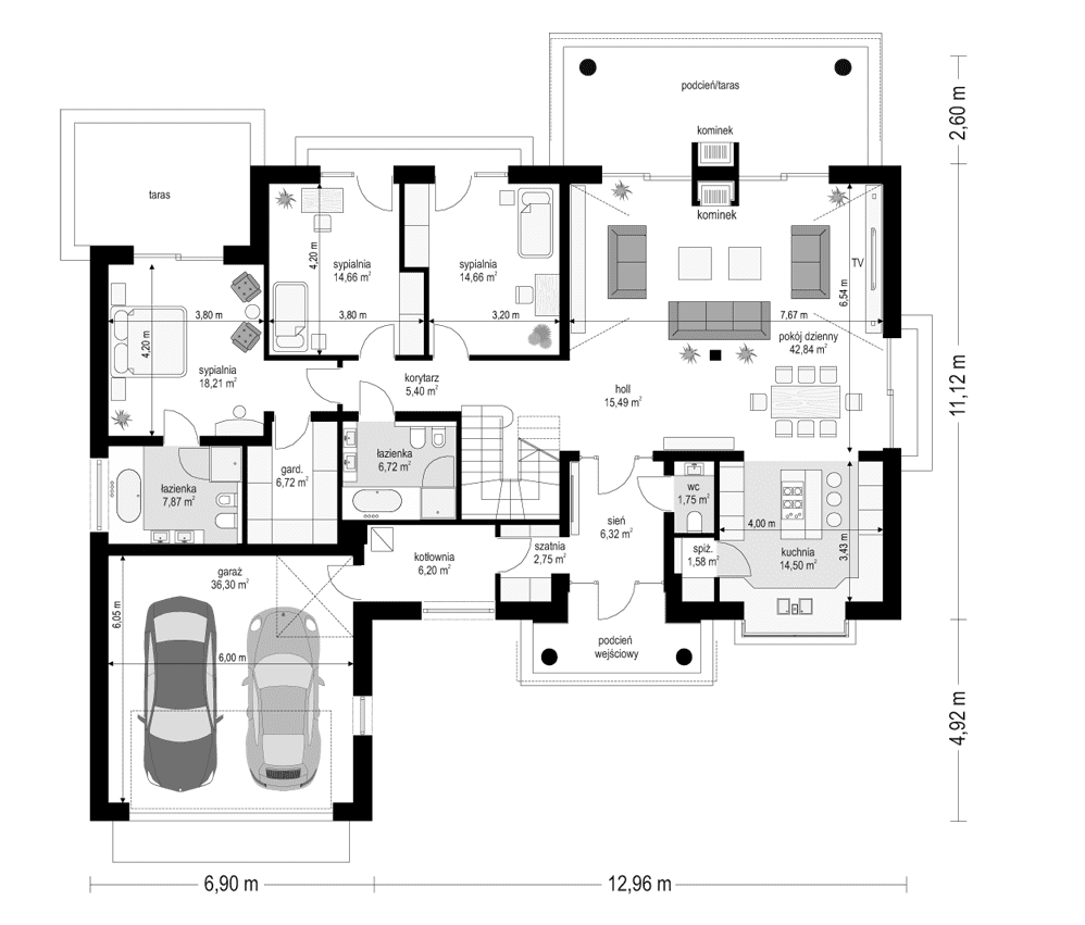
Wnętrze Willi Parkowej zaprojektowano nowocześnie i funkcjonalnie. Część dzienna to jednoprzestrzenna powierzchnia uzytkowa salonu, jadalni, holu i kuchni. Nad częścią salonu zaprojektowano otwarcie przestrzenne – pustkę. W domu Willa Parkowa nad salonem przewidziano antresolę. Z holu i salonu widzimy reprezentacyjne zabiegowe schody na poddasze.
Drugą część budynku w projekcie domu Willa Parkowa zajmują sypialnie, oddzielone od części dziennej.
W tym domu przewidziano również apartament rodziców – z łazienką i garderobą i własnym oddzielnym tarasem, oraz dwie sypialnie dziecięce z łazienką. Na poddaszu zaprojektowano dodatkowy pokój – może to być gabinet, lub jeszcze jedna sypialnia.
W części gospodarczej projektanci MGProjekt zaplanowali kotłownię i dwustanowiskowy garaż. Staraliśmy się oszczędnie gospodarować przestrzenią i „wycisnąć” z niej jak najwięcej. Dzięki temu projekt Willa Parkowa to komfortowy, ale jednocześnie ekonomiczny budynek, z którego przyszli domownicy będą dumni. Willa Parkowa to dom, który nie zrujnuje na całe życie kosztami budowy i utrzymania.
W projekcie domu Willa Parkowa zostały zastosowane energooszczędne rozwiązania, koszty życia w tej mini-rezydencji będą więc kształtowały się na sensownym poziomie.
Zapraszamy do obejrzenia wszystkich projektów domów z serii Willa Parkowa: https://www.mgprojekt.com.pl/willa-parkowa, https://www.mgprojekt.com.pl/willa-parkowa-2, https://www.mgprojekt.com.pl/willa-parkowa-3, https://www.mgprojekt.com.pl/willa-parkowa-4, https://www.mgprojekt.com.pl/willa-parkowa-5, https://www.mgprojekt.com.pl/willa-parkowa-6, https://www.mgprojekt.com.pl/willa-parkowa-6-d, https://www.mgprojekt.com.pl/willa-parkowa-7, https://www.mgprojekt.com.pl/willa-parkowa-8-a, https://www.mgprojekt.com.pl/willa-parkowa-8-b, https://www.mgprojekt.com.pl/willa-parkowa-9, https://www.mgprojekt.com.pl/willa-parkowa-10, https://www.mgprojekt.com.pl/willa-parkowa-b, https://www.mgprojekt.com.pl/willa-parkowa-c, https://www.mgprojekt.com.pl/willa-parkowa-d.
Elewacje
Zestawienie pomieszczeń
Parter
Piętro
Dodatkowe Informacje o Budynku
| Powierzchnia garażu: | 36,30 m2 |
| Powierzchnia strychu: | 33,59 m2 |
| Technologia wykonania: | |
| Typ budynku: | jednorodzinny |
| Styl: | dworek |
| Ilość kondygnacji: | parterowy z poddaszem użytkowym |
| Poddasze: | poddasze użytkowe |
| Podpiwniczenie: | brak |
| Dach: | wielospadowy |
Przeciętne Koszty budowy
| Pozycja | Koszt realizacji |
|---|---|
| Stan surowy otwarty | 298 392,00 zł |
| Stan surowy zamknięty | 418 998,00 zł |
| Roboty wykończeniowe | 363 868,00 zł |
| Stan deweloperski | 782 867,00 zł |
| Instalacje | 106 048,00 zł |
| Pokrycie dachu | 61 517,00 zł |






