uA32 jest to komfortowy, gotowy projekt domu dla najbardziej wymagających klientów. Jego powierzchnia użytkowa to 241 m2. Projekt ten charakteryzuje ciekawa bryła z dachem wielospadowym oraz rozległy, zadaszony taras. W projekcie tym znajduję się praktyczny dwustanowiskowy garaż z kotłownią. Na dole mieści się rozległy salon z jadalnią, który daje poczucie przestrzeni. Półotwarta kuchnia ze spiżarnią, łazienka oraz dodatkowy pokój z garderobą. Piętro to trzy komfortowe sypialnie, w tym jedna główna połączona z garderobą, pralną oraz łazienką. uA32 to rodzinny projekt domu, który doskonale wpisze się w środowisko miejskie, jak i naturalny krajobraz np. leśny. Projekt uA32 występuje także w wariancie uA32v1. Zmieniona została technologia budowy z muru 2-warstwowego na mur 3-warstwowy oraz nieco zmodyfikowano ukad funkacjonalny.
Elewacje




Zestawienie pomieszczeń
Parter

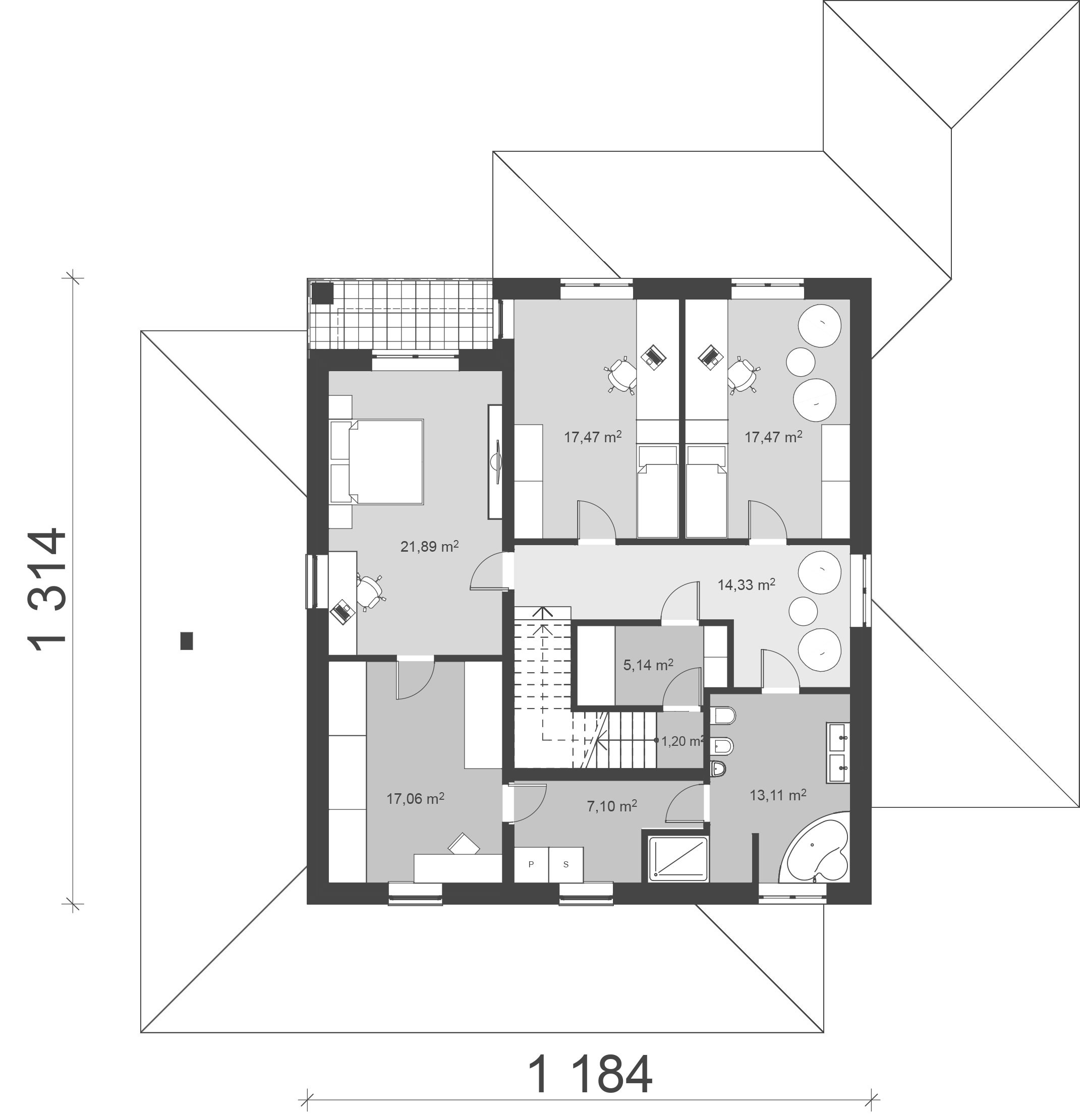
Piętro
Usytuowanie na działce

Dodatkowe Informacje o Budynku
| Garaż: | dwustanowiskowy |
| Dach: | wielospadowy |
| Technologia wykonania: | Murowana |






















