uA123 jest to projekt gotowy domu piętrowego o prostej bryle w tradycyjnym stylu z dachem wielospadowym. Projekt ten ma 159 m2 powierzchni użytkowej, na której mieści się wszystko co potrzebne do komfortowego mieszkania. Wyjątkowego charakteru temu projektowi domu nadaje ciekawy dobór materiałów zastosowanych na elewacjach. Ideą tego projektu było uzyskanie wygodnej w użytkowaniu i ergonomicznej bryły, która zarazem będzie ciekawym punktem w przestrzeni. Pełne piętro, boczny garaż dwustanowiskowy z przejściem do domu oraz dodatkowy pokój na dole to atuty tego projektu domu. Po przekroczeniu drzwi wejściowych znajdujemy się w wiatrołapie, który prowadzi do otwartej przestrzeni, w której zlokalizowano przestronny i jasny salon z jadalnią oraz kuchnię ze spiżarnią. Na parterze zaprojektowano również toaletę oraz gabinet. Duża ilość przeszkleń zastosowanych na parterze zapewnia dostęp światła do wnętrza optycznie je powiększając, a jednocześnie otwiera dom na ogród, zapraszając zieleń do środka. Niewątpliwą zaletą tego projektu domu jest również narożny, częściowo zadaszony, okazały taras, który będzie idealnym miejscem do organizacji letnich przyjęć w ogrodzie. Na piętrze znajdują się cztery sypialnie, w tym jedna z garderobą oraz wygodna łazienka z oddzieloną praktyczną pralnią. uA123 to idealna propozycja dla rodziny z dziećmi, która szuka wygodnego i komfortowego domu na lata.
Elewacje
Zestawienie pomieszczeń
Parter
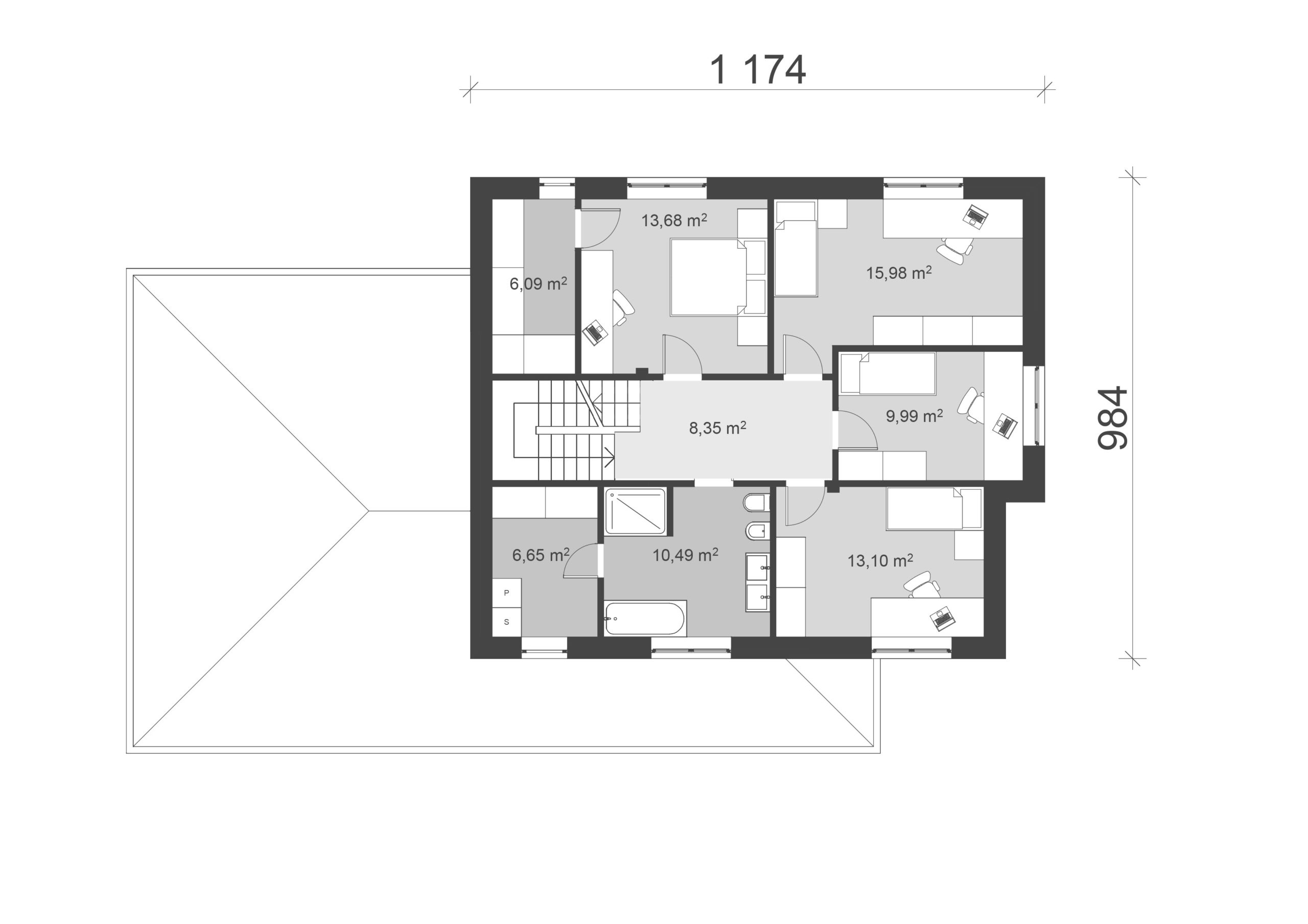
Piętro
Usytuowanie na działce
Dodatkowe Informacje o Budynku
| Garaż: | dwustanowiskowy |
| Dach: | wielospadowy |
| Technologia wykonania: | Murowana |




