Charakterystyka: Dom parterowy z
poddaszem użytkowym, niepodpiwniczony
Przeznaczenie: Dom dla 3-5-osobowej
rodziny
Technologia i
konstrukcja:
Ściany zewnętrzne: murowane,
dwuwarstwowe, beton komórkowy firmy H+H 24 cm, ocieplenie styropian Termo
Organika 20 cm
Ściany wewnętrzne: nośne i działowe
murowane, beton komórkowy firmy H+H 24 cm i 12 cm
Strop: międzypiętrowy
gęstożebrowy Teriva
Dach: konstrukcja drewniana,
ocieplenie wełna mineralna Isover 30
cm, dachówka ceramiczna płaska Bergamo firmy Röben
Schody: wewnętrzne drewniane
Rozwiązania
instalacyjne:
Ogrzewanie: kocioł gazowy
kondensacyjny firmy Viessmann, rozprowadzenie ciepła: grzejniki firmy Purmo
Wentylacja: grawitacyjna
OZE: kolektory słoneczne firmy Viessmann
Wykończenie:
Elewacje: tynk cienkowarstwowy
mineralny w kolorze białym TO-PA001 z palety firmy Termo Organika, okładzina
drewniana w pionowym układzie desek
Stolarka: drewniana, PVC lub
aluminiowa, drzwi tarasowe podnoszono-przesuwne typu HS
aluminiowo-drewniane Innowiev firmy Fakro, drzwi wejściowe firmy Hörmann
Okna połaciowe: rozwiązania
technologiczne i wyłaz dachowy firmy FAKRO
Otoczenie: kostka betonowa i
płyty tarasowe firmy Libet, system tarasowy ProDeck – deska kompozytowa Terra w
kolorze orzech
Wersje w serii Mini 14 – zapytaj o dostępność:
– odbicie lustrzane
Wszystkie wersje domów mozliwe w dwóch
standardach/wariantach instalacyjnych:
– ENERGO: kocioł gazowy kondensacyjny, grzejniki, wentylacja
grawitacyjna, OZE: kolektory słoneczne
– ENERGO PLUS: pompa ciepła, ogrzewanie podłogowe, wentylacja
mechaniczna, OZE: system solarny lub panele fotowoltaiczne
Istnieją techniczne możliwości wykonania
zmian:
–
podpiwniczenia budynku
– wykonania budynku w technologii szkieletowej
– dokonania zmian funkcjonalnych wg indywidualnych wymagań
Elewacje




Zestawienie pomieszczeń

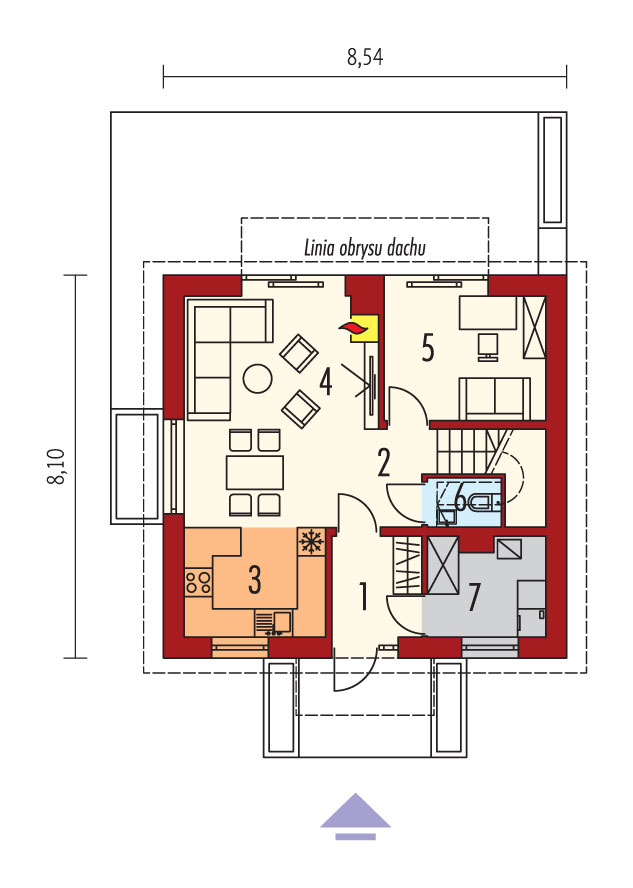
Parter
| Wiatrołap | 4.01 m2 |
| Hol + schody | 6.41 m2 |
| Kuchnia | 6.89 m2 |
| Pokój dzienny + jadalnia | 18.57 m2 |
| Gabinet | 8.90 m2 |
| Toaleta | 1.58 m2 |
| Kotłownia | 4.99 m2 |

Poddasze
| Korytarz | 3.33 m2 |
| Sypialnia | 9.13 m2 |
| Sypialnia | 8.82 m2 |
| Sypialnia | 7.42 m2 |
| Łazienka | 5.21 m2 |
Przeciętne Koszty budowy
| Pozycja | Koszty uśrednione* |
|---|---|
| Stan surowy otwarty | zł |
| Stan surowy zamknięty | zł |
| Instalacje wewnętrzne | zł |
| Stan deweloperski | zł |
Dodatkowe Informacje o Budynku
| Rodzaj zabudowy: | wolnostojąca |
| Rodzaj projektu: | dom |
| Kominek: | możliwość podłączenia |
| Garaż: | brak |
| Powierzchnia strychu: | 0.00 m2 |
| Dach: | dwuspadowy |
| Liczba kondygnacji: | parterowy z poddaszem użytkowym |
| Liczba pokoi: | 4 |
| Liczba sypialni: | 1 |
| Liczba łazienek: | 1 |






















