Technologia tradycyjna : – ściany zewnętrzne murowane gr. 30 cm – ściany wewnętrzne nośne gr. 25 cm – ściany wewnętrzne działowe gr. 12 cm – wszystkie ściany wykonane z pustaków ceramicznych "POROTHERM"
Zestawienie pomieszczeń

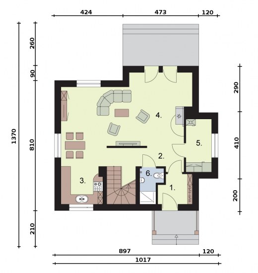
Rzut przyziemia
| Wiatrołap | 3.71 m2 |
| Komunikacja | 8.36 m2 |
| Kuchnia z jadalnią | 10.7 m2 |
| Pokój dzienny | 31.06 m2 |
| Kotłowania/pralnia | 5.28 m2 |
| Łazienka | 2.68 m2 |

Rzut poddasza
| Komunikacja | 4.78 m2 |
| Łazienka | 6.34 m2 |
| Pokój | 9.35 m2 |
| Pokój | 10.32 m2 |
| Pokój | 8.21 m2 |
Przeciętne Koszty budowy
| Pozycja | Koszt realizacji |
|---|---|
| Stan zerowy | 45 154,00 zł |
| Stan surowy | 99 339,00 zł |
| Roboty wykończeniowe wewnętrzne | 62 933,00 zł |
| Roboty wykończeniowe zewnętrzne | 26 246,00 zł |
| Instalacje | 48 540,00 zł |
| Suma | 282 212,00 zł |




















