Projekt dostępny również w odbiciu lustrzanym
Projekt domu Konwalia to dom jednorodzinny dla 4- 5-osobowej rodziny, parterowy z poddaszem użytkowym, przykryty dwuspadowym dachem, zbudowany na prostokątnym rzucie z wbudowanym garażem w bryle budynku. Forma architektoniczna, zastosowane materiały, detale, podkreślają nowoczesny styl domu. Projekt domu Konwalia mimo niedużej powierzchni mieści w sobie wszystko to, co powinno się znaleźć w domu jednorodzinnym. Na parterze mamy więc otwartą przestrzeń dzienną, z pokojem dziennym z kominkiem i ścianą TV, kącikiem jadalnym, oraz otwartą kuchnią i holem. Mamy też dodatkowy pokój – sypialnię lub gabinet, oraz garaż i kotłownię – dostępne z przedsionka wejściowego. Ładne przeszklenia i otwarcia na taras i ogród doświetlają wnętrze i otwierają dom na otaczającą przyrodę. Na poddaszu mamy trzy sypialnie, sporą łazienkę i garderobą dostępną z sypialni rodziców. Wnętrza są funkcjonalne i ustawne. Projekt domu Konwalia został zaprojektowany w technologii energooszczędnej. Doskonałe ocieplenia przegród zewnętrznych pozwalają w łatwy sposób dostosować dom do standardu NF40. Zwarta bryła i prosta konstrukcja budynku pozwoli na szybką i niedrogą budowę, oraz późniejszą oszczędną eksploatację budynku. Zapraszamy !
Elewacje




Zestawienie pomieszczeń
Parter

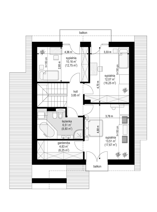
Piętro

Dodatkowe Informacje o Budynku
| Powierzchnia garażu: | 18,09 m2 |
| Powierzchnia strychu: | 0,00 m2 |
| Technologia wykonania: | |
| Typ budynku: | jednorodzinny |
| Styl: | tradycyjny |
| Ilość kondygnacji: | parterowy z poddaszem użytkowym |
| Poddasze: | poddasze użytkowe |
| Podpiwniczenie: | brak |
| Dach: | dwuspadowy |
Przeciętne Koszty budowy
| Pozycja | Koszt realizacji |
|---|---|
| Stan surowy otwarty | 184 289,00 zł |
| Stan surowy zamknięty | 249 164,00 zł |
| Roboty wykończeniowe | 243 518,00 zł |
| Stan deweloperski | 492 683,00 zł |
| Instalacje | 76 375,00 zł |
| Pokrycie dachu | 29 680,00 zł |


























