Projekt dostępny również w odbiciu lustrzanym
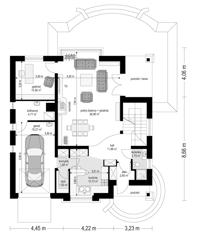
Projekt domu Gwiazda to dom z poddaszem użytkowym dla 4- 5-osobowej rodziny. Budynek zaprojektowano na planie kwadratu o boku długości dwanaście metrów i przekryto kopertowym dachem. Każda z elewacji została ozdobiona lukarną. Bryłę domu akcentują przedni i tylny wykusz, oraz podcienie wejściowy i ogrodowy wsparte na kolumnach z przyporami. Dom Gwiazda, dzięki niewielkim wymiarom zmieści się na małej, również wąskiej działce. Tradycyjna spokojna architektura domu łatwo wpasuje się w otoczenie i na pewno spodoba się sąsiadom. Projekt jeszcze bardziej spodobać się może jego właścicielom – głównie dzięki przemyślanemu i bardzo funkcjonalnemu wnętrzu. Parter domu Gwiazda stanowi duży salon z jadalnią, połączony z holem i częściowo otwartą kuchnią. Wejście do budynku wiedzie przez podcień wejściowy – co ważne dla rodziny z dziećmi: schody na poddasze znajdują się blisko wejścia. Z kuchni można przejść do korytarza – schowka gospodarczego – połączonego ze spiżarnią i garażem. Z garażu przechodzimy do kotłowni. Na parterze zaprojektowano dodatkowy pokój mogący służyć jako gabinet czy biblioteczka, lub ewentualnie dodatkowa sypialnia gościnna. Można również wykorzystać tę przestrzeń jako dodatkową część salonu – np. pokój telewizyjny. Poddasze to trzy sypialnie, w tym jedna z własną łazienką i garderobą – apartament państwa domu. Na poddaszu zaplanowano również pralnię. Dzięki dużym lukarnom sypialnie prawie nie mają „skosów”. Pracownia dysponuje również projekt domu Gwiazda w odbiciu lustrzanym.
Elewacje




Zestawienie pomieszczeń
Parter

Piętro

Dodatkowe Informacje o Budynku
| Powierzchnia garażu: | 18,27 m2 |
| Powierzchnia strychu: | 0,00 m2 |
| Technologia wykonania: | |
| Typ budynku: | jednorodzinny |
| Styl: | tradycyjny |
| Ilość kondygnacji: | parterowy z poddaszem użytkowym |
| Poddasze: | poddasze użytkowe |
| Podpiwniczenie: | brak |
| Dach: | czterospadowy |
Przeciętne Koszty budowy
| Pozycja | Koszt realizacji |
|---|---|
| Stan surowy otwarty | 198 648,00 zł |
| Stan surowy zamknięty | 276 547,00 zł |
| Roboty wykończeniowe | 313 378,00 zł |
| Stan deweloperski | 589 925,00 zł |
| Instalacje | 112 402,00 zł |
| Pokrycie dachu | 45 801,00 zł |


























