Projekt dostępny również w odbiciu lustrzanym
Projekt domu Familijny to propozycja willi dla trzypokoleniowej rodziny, z odrębnym mieszkaniem dla dziadków lub dziecka z własną rodziną. Dom Familijny ma rozłożystą bryłę, przekrytą niewysokim wielospadowym dachem. Układ pomieszczeń i wejścia do obu części domu zaprojektowano tak, aby dom pasował na działkę z niekorzystnym położeniem względem stron świata. Doskonale nadaje się na działkę gdzie planowany jest ogród od strony wejścia. Pracownia dysponuje również odbiciem lustrzanym projektu domu Familijny.
Elewacje
Zestawienie pomieszczeń
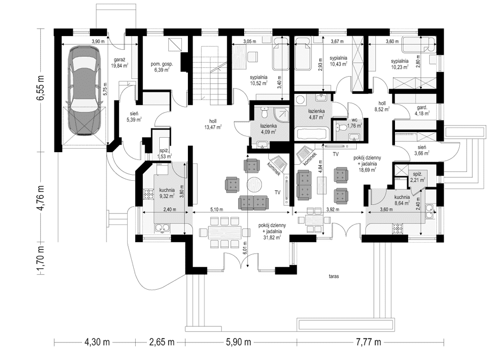
Parter
Piętro
Dodatkowe Informacje o Budynku
| Powierzchnia garażu: | 19,84 m2 |
| Powierzchnia strychu: | 0,00 m2 |
| Technologia wykonania: | |
| Typ budynku: | z osobnym mieszkaniem |
| Styl: | tradycyjny |
| Ilość kondygnacji: | parterowy z poddaszem użytkowym |
| Poddasze: | poddasze użytkowe |
| Podpiwniczenie: | brak |
| Dach: | wielospadowy |
Przeciętne Koszty budowy
| Pozycja | Koszt realizacji |
|---|---|
| Stan surowy otwarty | 266 031,00 zł |
| Stan surowy zamknięty | 380 285,00 zł |
| Roboty wykończeniowe | 410 035,00 zł |
| Stan deweloperski | 790 320,00 zł |
| Instalacje | 119 428,00 zł |
| Pokrycie dachu | 60 450,00 zł |






