Parterowy dom z dwuspadowym dachem i podwójnym garażem w bryle budynku. Nowoczesna stylistyka, energooszczędne rozwiązania pozwalające zmniejszyć koszty utrzymania. Wnętrze przewiduje otwartą strefę pobytu dziennego, na która składa się salon i kuchnia. W przeszklonej strefie ulokowano duży jadalniany stół. W salonie zaprojektowano kominek. Na taras prowadzą przesuwne drzwi w systemie HS. Strefę nocną tworzą 3 sypialnie oraz komfortowa łazienka. W kotłowni zaprojektowano stanowiska na pralkę i suszarnię. Podwójny garaż posiada drzwi wyjściowe. Projekt można realizować niskim nakładem kosztów ze względu na prosta konstrukcję i zwartą bryłę. Doskonały wariant dla 4-5 osobowej rodziny.
Elewacje




Zestawienie pomieszczeń

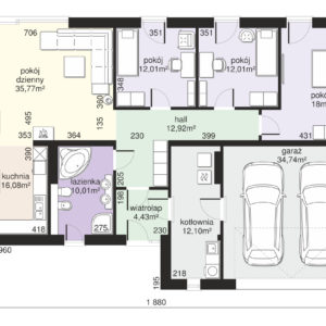
Parter
| wiatrołap | 4.43 m2 |
| hall | 12.92 m2 |
| łazienka | 10.01 m2 |
| kuchnia | 16.08 m2 |
| pokój dzienny | 35.77 m2 |
| pokój | 12.01 m2 |
| pokój | 12.01 m2 |
| pokój | 18.00 m2 |
| garaż | 34.74 m2 |
| kotłownia | 12.10 m2 |
Dodatkowe Informacje o Budynku
| Energia pierwotna: | kWh/m2*rok |
| Energia końcowa: | kWh/m2*rok |
| Garaż: | dwustanowiskowy |
| Dach: | dwuspadowy |
| Technologia wykonania: | |
| Poddasze: |



















