Dom w Migdałowej 7 to projekt domu jednorodzinnego o powierzchni użytkowej 92,57 m². Dom z poddaszem użytkowym i dachem dwuspadowym posiada garaż w bryle głównej budynku. Migdałowa 7 doskonale nadaje się do realizacji na wąskich działkach, o minimalnej szerokości 13,5 m. Układ funkcjonalny składa się z 4 pokoi, kuchni, 2 łazienek, garderoby oraz kotłowni. Na parterze znajduje się nasłoneczniona część dzienna z salonem o powierzchni 25 m² oraz otwartą kuchnią. Poddasze to przytulna część nocna. Znajdziemy tu 3 wygodne sypialnie z dostępem do francuskich balkonów oraz główną łazienkę. Sypialnia typu master bedroom wychodzi na przestronny taras. Projekt opracowany zgodnie z normami technicznymi WT 2021. Został zaprojektowany z myślą o warunkach, jakie powinny w przyszłości spełniać projekty domów zeroemisyjnych.
Elewacje




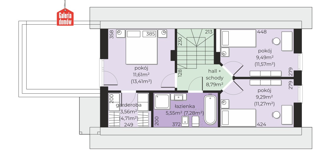
Zestawienie pomieszczeń

Parter
| wiatrołap | 4.24 m2 |
| hall | 6.03 m2 |
| garaż | 20.40 m2 |
| kotłownia | 5.26 m2 |
| toaleta | 0.90 m2 |
| pokój dzienny | 25.53 m2 |
| kuchnia | 7.58 m2 |

Piętro
| hall + schody | 8.79 m2 |
| pokój | 9.49 m2 |
| pokój | 9.29 m2 |
| łazienka | 5.55 m2 |
| garderoba | 3.56 m2 |
| pokój | 11.61 m2 |
| taras | 20.68 m2 |
Dodatkowe Informacje o Budynku
| Energia pierwotna: | kWh/m2*rok |
| Energia końcowa: | kWh/m2*rok |
| Garaż: | jednostanowiskowy |
| Dach: | dwuspadowy |
| Technologia wykonania: | |
| Poddasze: |





















