Projekt dostępny również w odbiciu lustrzanym
Projekt domu Dom Na Górce to bardzo funkcjonalny dom o zwartej bryle, nowoczesnym wyrazie i prostej formie. Bryła budynku została wkomponowana w skarpę na działce – naturalną lub sztuczną. Ukryto dzięki temu obszerną piwnicę z garażem i wiatą. Dzięki zaprojektowanej wiacie garażowej, która wycina narożnik domu u jego podstawy, bryła stała się bardziej dynamiczna. Wnętrze domu rozwiązano w autorski sposób, wprowadzając wiele oryginalnych rozwiązań, przez co dom będzie sprawiał wrażenie niepowtarzalności. Projekt domu Dom na Górce wyróżnia się przede wszystkim dużą frontową taflą szkła, łączącego holl na parterze z holem i przedsionkiem wejściowym w przyziemiu – piwnicy. Schody – o jasnym prostym układzie są widoczne również od zewnątrz domu. Cechą charakterystyczną projektu Dom Na Górce jest centralne ustawienie holu i schodów oraz wyraźne oddzielenie funkcji dziennej, nocnej i technicznej domu. Jednoprzestrzenna bardzo wygodna w użytkowaniu część dzienna. Wiele szaf, schowków, pomieszczeń pomocniczych – jak spiżarnia, pralnia. Duży wygodny garaż, oraz wiata na dodatkowe auta, do tego bardzo wyraźne podziały w ścian na puste i przeszklone powierzchnie – wszystko to tworzy niepowtarzalny wygląd. Pracownia posiada odbicie lustrzane projektu domu Dom Na Górce.
Elewacje
Zestawienie pomieszczeń
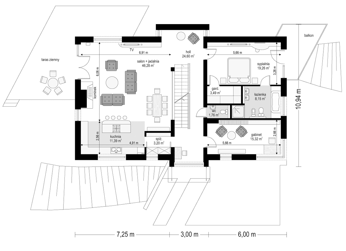
Parter
Piętro
Dodatkowe Informacje o Budynku
| Powierzchnia garażu: | 38,47 m2 |
| Powierzchnia strychu: | 0,00 m2 |
| Technologia wykonania: | |
| Typ budynku: | jednorodzinny |
| Styl: | nowoczesny |
| Ilość kondygnacji: | parterowy z poddaszem użytkowym |
| Poddasze: | poddasze użytkowe |
| Podpiwniczenie: | tak |
| Dach: | dwuspadowy |
Przeciętne Koszty budowy
| Pozycja | Koszt realizacji |
|---|---|
| Stan surowy otwarty | 315 727,00 zł |
| Stan surowy zamknięty | 441 924,00 zł |
| Roboty wykończeniowe | 463 543,00 zł |
| Stan deweloperski | 905 468,00 zł |
| Instalacje | 134 198,00 zł |
| Pokrycie dachu | 47 828,00 zł |






