Charakterystyka: Dom parterowy,
niepodpiwniczony z garażem dwustanowiskowym
Przeznaczenie: Dom dla 3-4-osobowej rodziny
Technologia i konstrukcja:
Ściany zewnętrzne: murowane, dwuwarstwowe,
beton komórkowy firmy H+H 24 cm, ocieplenie styropianem Termo Organika 20cm
Ściany wewnętrzne: ścianki działowe murowane, beton komórkowy H+H
12 cm
Strop: gęstożebrowy Teriva, ocieplenie
wełna mineralna Isover 30 cm
Dach: konstrukcja drewniana, dachówka ceramiczna
płaska Bergamo firmy Röben
Rozwiązania instalacyjne:
Ogrzewanie: kocioł gazowy
kondensacyjny firmy Viessmann, rozprowadzenie ciepła: grzejniki płytowe firmy
Purmo
Wentylacja: grawitacyjna
Dodatkowo: stacja uzdatniania wody firmy Viessmann
OZE: system solarny firmy Viessmann
Wykończenie:
Elewacje: tynk cienkowarstwowy
mineralny w kolorze białym TO-WH002 z palety firmy Termo Organika, okładzina
drewniana w pionowym układzie desek
Stolarka: drewniana, PVC lub
aluminiowa, drzwi wejściowe i brama garażowa firmy Hörmann
Wersje w serii Daniel VIII – zapytaj o dostępność:
– Daniel VIII G2 ENERGO PLUS – inne wykończenie elewacji,
wentylacja mechaniczna, pompa ciepła
– wszystkie wersje o takim samym układzie funkcji
– odbicie lustrzane do każdej wersji
Wszystkie wersje domów możliwość w dwóch standardach/wariantach
instalacyjnych:
– ENERGO: kocioł gazowy kondensacyjny, grzejniki, wentylacja
grawitacyjna, OZE: kolektory słoneczne
– ENERGO PLUS: pompa ciepła, ogrzewanie podłogowe, wentylacja
mechaniczna, OZE: panele fotowoltaiczne
Istnieją techniczne możliwości wykonania zmian:
– podpiwniczenia budynku
– wykonania budynku w technologii szkieletowej
– dokonania zmian funkcjonalnych wg indywidualnych wymagań
Elewacje
Zestawienie pomieszczeń
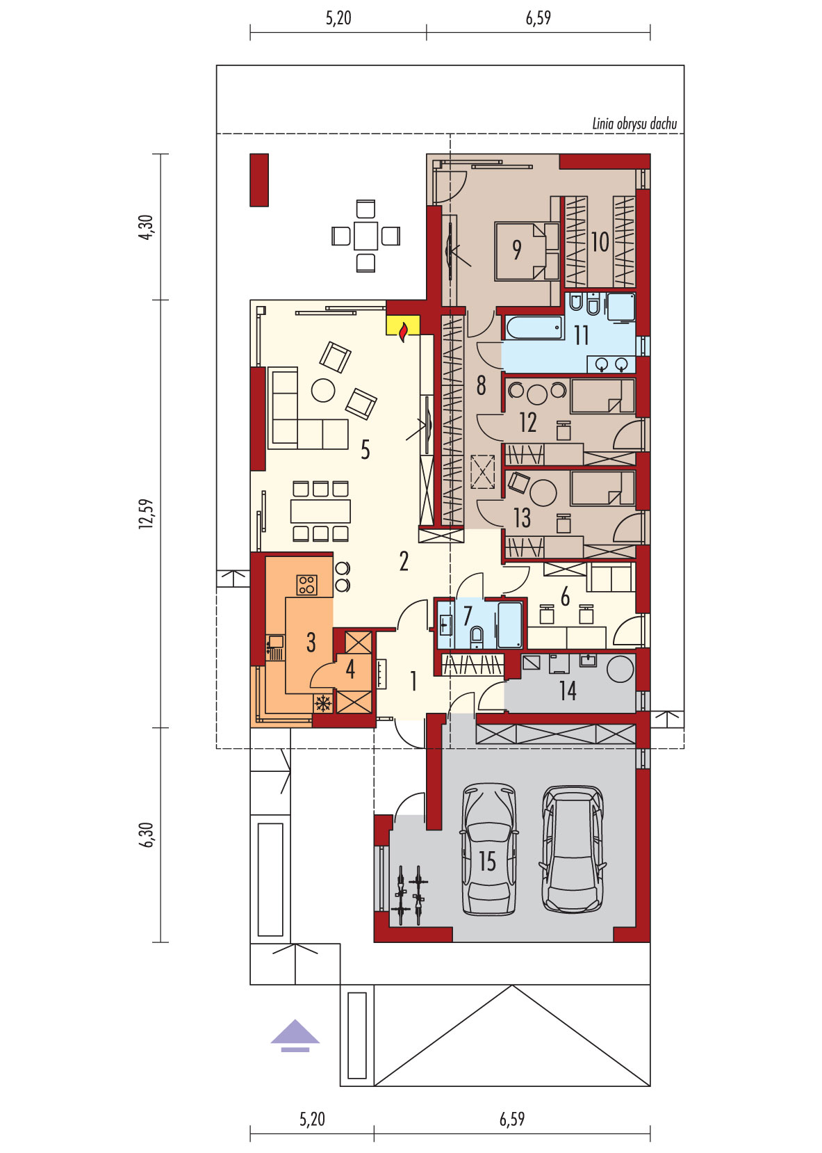
Parter
| Wiatrołap + garderoba | 7.82 m2 |
| Hol | 6.56 m2 |
| Kuchnia | 9.17 m2 |
| Spiżarnia | 2.34 m2 |
| Pokój dzienny + jadalnia | 34.34 m2 |
| Gabinet | 8.83 m2 |
| Łazienka | 8.03 m2 |
| Korytarz + garderoba | 14.93 m2 |
| Sypialnia | 14.17 m2 |
| Garderoba | 7.35 m2 |
| Łazienka | 3.58 m2 |
| Sypialnia | 9.98 m2 |
| Sypialnia | 9.98 m2 |
| Pom. techniczne | 6.28 m2 |
| Garaż | 38.58 m2 |
Przeciętne Koszty budowy
| Pozycja | Koszty uśrednione* |
|---|---|
| Stan surowy otwarty | zł |
| Stan surowy zamknięty | zł |
| Instalacje wewnętrzne | zł |
| Stan deweloperski | zł |
Dodatkowe Informacje o Budynku
| Rodzaj zabudowy: | wolnostojąca |
| Rodzaj projektu: | dom |
| Kominek: | możliwość podłączenia |
| Garaż: | |
| Powierzchnia strychu: | 0.00 m2 |
| Dach: | dwuspadowy |
| Liczba kondygnacji: | parterowy |
| Liczba pokoi: | 3 |
| Liczba sypialni: | 1 |
| Liczba łazienek: | 2 |


