Projekt domu Adriana III (wersja B)

4 299,98 

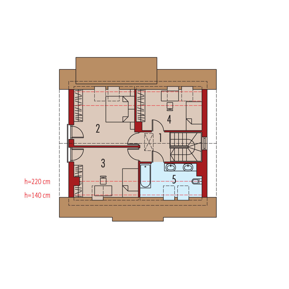
Wymiary budynku 9.80 m × 8.80 m
Min. wymiary działki 17.80 m x 16.80 m
Pow. zabudowy 86.80 m 2
Wysokość budynku 8.77 m
Kąt nachylenia dachu 44.00 o
Powierzchnia użytkowa 105.74 m 2
Garaż 0.00m 2
Pow. piwnic 0.00 m 2
Pow. netto 133.46 m 2
Kubatura 336.94 m 3
Powierzchnia dachu 161.00 m 2
Autor projektu: Archipelag.pl